

仲介手数料無料キャンペーン中です。
※キャンペーン内容は売買、賃貸、お部屋により異なります。
エレベーター,オートロック,宅配ボックス,TVドアホン,バイク置き場,駐輪場,敷地内ゴミ置き場,内廊下,防犯カメラ,BS,CS,CATV,インターネット,バリアフリー,閑静な住宅街
※掲載情報が現況と異なる場合は、現況を優先させていただきます。
※キャンペーン情報は予告なく変更・終了する場合がございます。詳細はお問い合わせください。
※部屋により敷金・礼金・キャンペーンの内容が異なる場合がございますので、詳しい情報は各部屋ページにてご確認ください。
※分譲賃貸は部屋によって所有者が異なる為、内装や設備が変更されている場合がございます。
※ペットの飼育やSOHO利用に関しては、建物自体が許可を出していても、所有者の意向により禁止とされている場合もございますのでご注意ください。
押野(女性)
2021/05/13
都営大江戸線「本郷三丁目駅」から徒歩7分程の場所に物件はございました。
物件は通りに面していますが、交通量は多くなく落ち着いた環境にございます。
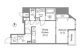
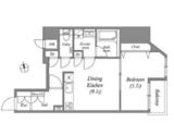
お部屋はフロアごとにカラースキームが異なり、ご案内した最上階のお部屋はナチュラルベージュの優しいカラーで、陽が沢山差し込むお部屋をより明るく引き立てていました。
東向きのバルコニーからは東京スカイツリーのてっぺんも望め、視界が良好です。
居室は8.1畳と広々としており、主要な家具の他に在宅ワーク用のデスクを置いても充分な広さだと感じました。
※これらの口コミは、ご成約者様や営業スタッフによる主観的な意見や感想です。建物の価値を客観的に評価するものではありません。あくまでも一つの参考としてご活用ください。
空室確認・内覧予約・空き待ちをご希望のお客様は、こちらよりお気軽にお問い合わせください。
03-6890-7755