

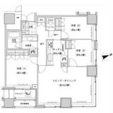
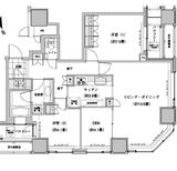
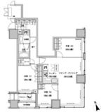
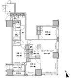
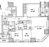
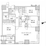
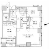
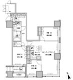
備考:
【駐車場】機械式117台 38,000~42,000円/月(税抜)
【バイク置き場】大型8台、ミニバイク38台 2,000円/月(税抜)
【駐輪場】439台 300円/月(税抜)
【ペット】6・19・28階は不可
【共用設備】
・コンシェルジュサービス(11時~20時)
・ビューラウンジ
・集会室 ※駐輪場・バイク置き場・駐車場の空き状況等詳細につきましてはお問い合わせください。
エレベーター,オートロック,宅配ボックス,TVドアホン,ペット足洗い場,駐車場,大型駐車場,バイク置き場,駐輪場,ラウンジ,コンシェルジュ,パーティールーム,敷地内ゴミ置き場,内廊下,24時間管理,防犯カメラ,BS,CS,CATV,インターネット,楽器可,免震・制震
※掲載情報が現況と異なる場合は、現況を優先させていただきます。
※キャンペーン情報は予告なく変更・終了する場合がございます。詳細はお問い合わせください。
※部屋により敷金・礼金・キャンペーンの内容が異なる場合がございますので、詳しい情報は各部屋ページにてご確認ください。
※分譲賃貸は部屋によって所有者が異なる為、内装や設備が変更されている場合がございます。
※ペットの飼育やSOHO利用に関しては、建物自体が許可を出していても、所有者の意向により禁止とされている場合もございますのでご注意ください。
(20代/男性/1LDK)
2023/09/28
立地が気に入りました。
(30代/男性/1DK)
2023/03/07
駅から近く道もわかりやすい。ラウンジや共用部も快適に使えそう。室内も清潔感があって良い。
(30代/女性/2LDK)
2020/11/21
想像していたよりも落ち着いていて、明るい雰囲気でした。
共用部はホテルのように立派で、内装や設備も非常に綺麗でした。
通勤の交通便が非常によく、建物の雰囲気が良かったため成約いたしました。
担当者のレスポンスも非常に早く助かりました。
※これらの口コミは、ご成約者様や営業スタッフによる主観的な意見や感想です。建物の価値を客観的に評価するものではありません。あくまでも一つの参考としてご活用ください。
空室確認・内覧予約・空き待ちをご希望のお客様は、こちらよりお気軽にお問い合わせください。
03-6890-7755