

フリーレント+仲介手数料無料+礼金0キャンペーン中です。
※キャンペーン内容は売買、賃貸、お部屋により異なります。
備考:
【駐車場】自走式立体駐車場 3層4段
普通車:261台 21,000円~27,000円/月額(税別) 全長5,000mm・全幅2,500mm・全高2,100mm・重量2,000kg
小型車:12台 18,000円~23,000円/月額(税別) 全長4,500mm・全幅2,500mm・全高2,100mm・重量2,000kg
※先着順受付
【バイク置き場】
原付バイク:14台 1,000円(税別)/月額
中・大型バイク:18台 6,000円(税別/月額
【駐輪場】1,035台(二段式・スライドレール式・平置)各住戸付属
【共用施設】
◆1階
・フロントカウンター:
8時~22時 年中無休※10時45分~11時45分、17時~17時半 休憩
・クア施設(温泉・露天風呂・サウナ)
平日 17:30~19:30
休祝日 12:30~21:30
大人440円 子供165円(小学生)・未就学時無料
・シミュレーションゴルフ:
10時~21時 年中無休 500円/30分(税別)※1ヶ月2回最大2時間まで
・フィットネスルーム:10時~21時 年中無休
・リラクゼーションルーム:8時~21時 年中無休
・ロイヤル文庫:無料施設
・ペット足洗い場:6時~24時
・アゲンルーム:※花粉除去の為のエアシャワー室です。無料
・スカイラウンジ
◆地下1階
・トランクルーム
◆37階
・スカイラウンジ:
午前の部 11:00~15:00
午後の部 17:00 21:00
4時間セット 18,700円
・ゲストルーム:2室
一泊7,700円/人
◆屋外
・コインパーキング:200円/30分(税込)
【ペット】飼育可能
6,9,11,12,15,16,19,21,24,25,29,31,32,33,35,36,37Fのみペット飼育不可(飼育時小型犬または猫2匹まで相談) ※駐輪場・バイク置き場・駐車場の空き状況等詳細につきましてはお問い合わせください。
エレベーター,オートロック,宅配ボックス,TVドアホン,トランクルーム,ペット足洗い場,駐車場,大型駐車場,バイク置き場,駐輪場,ラウンジ,コンシェルジュ,フィットネスジム,パーティールーム,スパ,敷地内ゴミ置き場,各階ゴミ置き場,内廊下,24時間管理,防犯カメラ,BS,CS,CATV,インターネット,バリアフリー,閑静な住宅街,楽器可
※掲載情報が現況と異なる場合は、現況を優先させていただきます。
※キャンペーン情報は予告なく変更・終了する場合がございます。詳細はお問い合わせください。
※部屋により敷金・礼金・キャンペーンの内容が異なる場合がございますので、詳しい情報は各部屋ページにてご確認ください。
※分譲賃貸は部屋によって所有者が異なる為、内装や設備が変更されている場合がございます。
※ペットの飼育やSOHO利用に関しては、建物自体が許可を出していても、所有者の意向により禁止とされている場合もございますのでご注意ください。
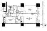
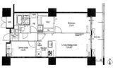
(20代/男性/2LDK)
2024/06/21
年数のわりにキレイにされていました。
部屋の数や邦楽、配置が理想的で、広さもしっかりあること、その分収納も多く家族でも住めそうです。
また賃料とアクセスなどもバランスがよく感じました。
担当の方にはわかりやすく回答いただけたこと、背中を押していただけた思いです。
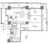
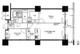
(40代/男性/1SLDK)
2024/01/29
急な申し込みに対応可能な物件だったことと、担当の押野さんの対応も良かったので成約に至りました。
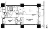
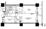
(50代/男性/1K)
2023/11/16
一人暮らしの引越で物件を探していたいるときにmこの物件を紹介していただきました。
立地がよくマンションの周りの環境も良かったです。
共用部も整備が行き届いて、毎日利用するのに気持ちよく利用できそうでした。
※これらの口コミは、ご成約者様や営業スタッフによる主観的な意見や感想です。建物の価値を客観的に評価するものではありません。あくまでも一つの参考としてご活用ください。
空室確認・内覧予約・空き待ちをご希望のお客様は、こちらよりお気軽にお問い合わせください。
03-6890-7755