

仲介手数料OFFキャンペーン中です。
※キャンペーン内容は売買、賃貸、お部屋により異なります。
エレベーター,オートロック,宅配ボックス,TVドアホン,駐車場,駐輪場,コンシェルジュ,敷地内ゴミ置き場,防犯カメラ,BS,CS,CATV,インターネット,閑静な住宅街,楽器可
※掲載情報が現況と異なる場合は、現況を優先させていただきます。
※キャンペーン情報は予告なく変更・終了する場合がございます。詳細はお問い合わせください。
※部屋により敷金・礼金・キャンペーンの内容が異なる場合がございますので、詳しい情報は各部屋ページにてご確認ください。
※分譲賃貸は部屋によって所有者が異なる為、内装や設備が変更されている場合がございます。
※ペットの飼育やSOHO利用に関しては、建物自体が許可を出していても、所有者の意向により禁止とされている場合もございますのでご注意ください。
(20代/女性/1LDK)
2016/11/16
今居住している所より多少狭かったが、セキュリティも良さそうで駅近なのが決め手でした。共有部は賃貸にしては高級感があり室内には床暖房など設備が充実していたのが良かったです。
村上(男性)
2016/10/22
【本郷三丁目駅】より徒歩3分の平坦な道を歩いた所に物件はあります。
春日通りから角を曲がって直ぐの場所に有るため大通りの騒音も気になること無く防犯面も安心だと感じました。
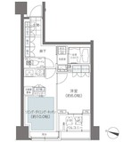
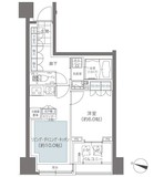
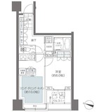
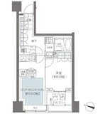
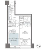
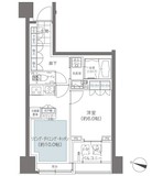
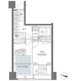
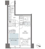
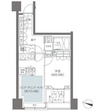
ご案内したお部屋は8階の1LDKタイプのお部屋です。
向かいの建物も丁度8階程の高さとなり、しっかりとお部屋に陽が射す明るいお部屋です。
少しコンパクトなお部屋ですが、大きめの窓や明るめのフローリングカラーが圧迫感を軽減してくれます。
またキッチンには居室スペース側にカウンターを設けており、カウンター上部にも戸棚が有るなど収納スペースも充分です。
※これらの口コミは、ご成約者様や営業スタッフによる主観的な意見や感想です。建物の価値を客観的に評価するものではありません。あくまでも一つの参考としてご活用ください。
空室確認・内覧予約・空き待ちをご希望のお客様は、こちらよりお気軽にお問い合わせください。
03-6890-7755