

エレベーター,オートロック,宅配ボックス,TVドアホン,バイク置き場,駐輪場,敷地内ゴミ置き場,防犯カメラ,BS,CS,CATV,インターネット,閑静な住宅街
※掲載情報が現況と異なる場合は、現況を優先させていただきます。
※キャンペーン情報は予告なく変更・終了する場合がございます。詳細はお問い合わせください。
※部屋により敷金・礼金・キャンペーンの内容が異なる場合がございますので、詳しい情報は各部屋ページにてご確認ください。
※分譲賃貸は部屋によって所有者が異なる為、内装や設備が変更されている場合がございます。
※ペットの飼育やSOHO利用に関しては、建物自体が許可を出していても、所有者の意向により禁止とされている場合もございますのでご注意ください。
木野内(女性)
2020/01/19
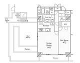
恵比寿駅4番出口を降り、鎗ヶ崎交差点へ向かう途中、駒沢通りから一本入ったところに物件がありました。出口からとても近い印象で、物件前は少し坂道になっておりましたがそれほど気になりませんでした。建物に入るとエントランスホールには商談スペースなどがありましたが、共用部・専有部共に全体的に無駄のないすっきりした印象を受けました。平米数のあるタイプのお部屋がほとんどですので、収納が広く多く設けられておりキッチン周りもゆとりのある造りとなっておりました。また、駐車場が平置きで数台分用意されていたところは、とても重宝される点に感じました。
※これらの口コミは、ご成約者様や営業スタッフによる主観的な意見や感想です。建物の価値を客観的に評価するものではありません。あくまでも一つの参考としてご活用ください。
空室確認・内覧予約・空き待ちをご希望のお客様は、こちらよりお気軽にお問い合わせください。
03-6890-7755