

フリーレント+仲介手数料無料+礼金0キャンペーン中です。
※キャンペーン内容は売買、賃貸、お部屋により異なります。
エレベーター,オートロック,TVドアホン,トランクルーム,駐車場,大型駐車場,駐輪場,ラウンジ,コンシェルジュ,フィットネスジム,敷地内ゴミ置き場,各階ゴミ置き場,内廊下,24時間管理,防犯カメラ,BS,CS,CATV,インターネット,閑静な住宅街,楽器可
※掲載情報が現況と異なる場合は、現況を優先させていただきます。
※キャンペーン情報は予告なく変更・終了する場合がございます。詳細はお問い合わせください。
※部屋により敷金・礼金・キャンペーンの内容が異なる場合がございますので、詳しい情報は各部屋ページにてご確認ください。
※分譲賃貸は部屋によって所有者が異なる為、内装や設備が変更されている場合がございます。
※ペットの飼育やSOHO利用に関しては、建物自体が許可を出していても、所有者の意向により禁止とされている場合もございますのでご注意ください。
齋藤(男性)
2022/10/02
JR山手線「恵比寿駅」から渋谷橋の交差点を越えた徒歩5分ほどの場所に物件はございます。
敷地内には噴水のある共用空間や様々な飲食店があり、私がご案内したのはちょうどお昼の時間だったため、多くの方が外で昼食を楽しんでいらっしゃいました。
天井の高い開放感のあるロビーではコンシェルジュサービスをご利用いただけます。
また入居者の方は併設する1階のスポーツジムが無料で利用でき、物件内からジムに入れるので1度外に出る必要もないのも嬉しいポイントです。
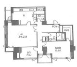
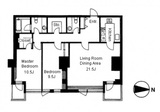
お部屋は1Rから4LDKまでの多彩なタイプをご用意しており、私がご案内した1LDKのお部屋はリビング・洋室ともに十分な広さがあり、単身からファミリーまで幅広い方におすすめです。
(30代/男性/1LDK)
2015/01/15
周辺環境など利便性が良かった。
※これらの口コミは、ご成約者様や営業スタッフによる主観的な意見や感想です。建物の価値を客観的に評価するものではありません。あくまでも一つの参考としてご活用ください。
空室確認・内覧予約・空き待ちをご希望のお客様は、こちらよりお気軽にお問い合わせください。
03-6890-7755