

仲介手数料無料キャンペーン中です。
※キャンペーン内容は売買、賃貸、お部屋により異なります。
エレベーター,オートロック,宅配ボックス,TVドアホン,駐車場,大型駐車場,バイク置き場,駐輪場,ラウンジ,敷地内ゴミ置き場,24時間管理,防犯カメラ,BS,CS,CATV,インターネット
※掲載情報が現況と異なる場合は、現況を優先させていただきます。
※キャンペーン情報は予告なく変更・終了する場合がございます。詳細はお問い合わせください。
※部屋により敷金・礼金・キャンペーンの内容が異なる場合がございますので、詳しい情報は各部屋ページにてご確認ください。
※分譲賃貸は部屋によって所有者が異なる為、内装や設備が変更されている場合がございます。
※ペットの飼育やSOHO利用に関しては、建物自体が許可を出していても、所有者の意向により禁止とされている場合もございますのでご注意ください。
早川(男性)
2024/10/01
最寄りの「代官山駅」まで約9分、再開発著しい渋谷駅までも約12分の立地のデザイナーズマンションです。ペット飼育相談可能、機械式駐車場もご準備がございます。
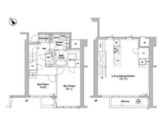
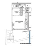
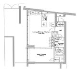
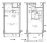
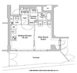
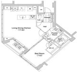
ご案内した2LDKのお部屋は広々としたリビングにカウンターキッチン、全室エアコン完備で好印象でした。また、北向きのお部屋でしたが各部屋の窓が大きいため室内は明るく、風通しもよさそうでした。
総戸数は57戸とさほど多くはないですが、エレベーターも2基あり、待ち時間も少なそうです。1DKなど単身向けの間取りもあるため、ファミリーやDINKSなど幅広い世帯におすすめです。
※これらの口コミは、ご成約者様や営業スタッフによる主観的な意見や感想です。建物の価値を客観的に評価するものではありません。あくまでも一つの参考としてご活用ください。
空室確認・内覧予約・空き待ちをご希望のお客様は、こちらよりお気軽にお問い合わせください。
03-6890-7755