

フリーレント+仲介手数料無料+礼金0キャンペーン中です。
※キャンペーン内容は売買、賃貸、お部屋により異なります。
備考:
【駐車場】
30台(平置3台、機械式27台)
平置:68,250円/月額 機械式:48,300円~52,500円/月額
※平置駐車場については、メゾネット住戸契約者に駐車場契約締結優先権がございます。
※敷地内機械式駐車場については、2LDKタイプの住戸契約者に駐車場契約締結優先権がございます。
【バイク置き場】ミニバイク用6台 7,350円/月額
【駐輪場】14台(2段ラック式)1,050円/月額
【トランクルーム】19区画 21,000円/月額 ※駐輪場・バイク置き場・駐車場の空き状況等詳細につきましてはお問い合わせください。
エレベーター,オートロック,宅配ボックス,TVドアホン,トランクルーム,ペット足洗い場,駐車場,大型駐車場,バイク置き場,駐輪場,ラウンジ,敷地内ゴミ置き場,内廊下,防犯カメラ,BS,CS,CATV,インターネット,閑静な住宅街
※掲載情報が現況と異なる場合は、現況を優先させていただきます。
※キャンペーン情報は予告なく変更・終了する場合がございます。詳細はお問い合わせください。
※部屋により敷金・礼金・キャンペーンの内容が異なる場合がございますので、詳しい情報は各部屋ページにてご確認ください。
※分譲賃貸は部屋によって所有者が異なる為、内装や設備が変更されている場合がございます。
※ペットの飼育やSOHO利用に関しては、建物自体が許可を出していても、所有者の意向により禁止とされている場合もございますのでご注意ください。
木野内(女性)
2016/11/28
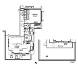
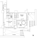
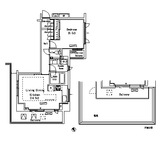
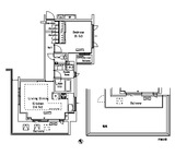
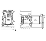
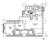
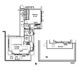
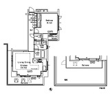
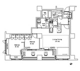
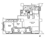
恵比寿西一丁目交差点より衆楽坂を上った高台に建っておりました。周辺の物件に比べ外観がお洒落で目に留まりやすく、共用部の内装も綺麗で清潔感がありました。ご案内したお部屋は8階の1LDKタイプ(東向き)で、お部屋からは東京タワーがよく見えましたので夜景が綺麗に見えそうなお部屋ですねとお客様とお話しておりました。お図面で見るよりも意外と広く感じた物件でした。
※これらの口コミは、ご成約者様や営業スタッフによる主観的な意見や感想です。建物の価値を客観的に評価するものではありません。あくまでも一つの参考としてご活用ください。
空室確認・内覧予約・空き待ちをご希望のお客様は、こちらよりお気軽にお問い合わせください。
03-6890-7755