

備考:
【駐車場】平置式 40,000/月額(税別)
【駐輪場】有
【バイク置き場】3,000/月額(税別) ※駐輪場・バイク置き場・駐車場の空き状況等詳細につきましてはお問い合わせください。
エレベーター,オートロック,宅配ボックス,TVドアホン,駐車場,大型駐車場,バイク置き場,駐輪場,敷地内ゴミ置き場,オール電化,防犯カメラ,BS,CS,CATV,インターネット,閑静な住宅街
※掲載情報が現況と異なる場合は、現況を優先させていただきます。
※キャンペーン情報は予告なく変更・終了する場合がございます。詳細はお問い合わせください。
※部屋により敷金・礼金・キャンペーンの内容が異なる場合がございますので、詳しい情報は各部屋ページにてご確認ください。
※分譲賃貸は部屋によって所有者が異なる為、内装や設備が変更されている場合がございます。
※ペットの飼育やSOHO利用に関しては、建物自体が許可を出していても、所有者の意向により禁止とされている場合もございますのでご注意ください。
福島(男性)
2020/10/17
JR山手線・東急目黒線「目黒駅」から徒歩4分の高級賃貸マンションです。
目黒駅周辺の物件と言えば、駅から10分ほどの物件も多いのですが、駅から至近の希少な物件になります。
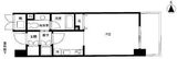
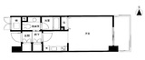
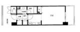
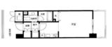
実際に駅から歩きましたが非常にアクセスが良かったです。私がご案内をした1LDKの間取りはLDK、洋室それぞれ広さがあり、とても使いやすそうな間取りでした。
※これらの口コミは、ご成約者様や営業スタッフによる主観的な意見や感想です。建物の価値を客観的に評価するものではありません。あくまでも一つの参考としてご活用ください。
空室確認・内覧予約・空き待ちをご希望のお客様は、こちらよりお気軽にお問い合わせください。
03-6890-7755