

仲介手数料OFFキャンペーン中です。
※キャンペーン内容は売買、賃貸、お部屋により異なります。
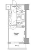
エレベーター,オートロック,宅配ボックス,TVドアホン,駐車場,敷地内ゴミ置き場,防犯カメラ,BS,CS,CATV,インターネット
※掲載情報が現況と異なる場合は、現況を優先させていただきます。
※キャンペーン情報は予告なく変更・終了する場合がございます。詳細はお問い合わせください。
※部屋により敷金・礼金・キャンペーンの内容が異なる場合がございますので、詳しい情報は各部屋ページにてご確認ください。
※分譲賃貸は部屋によって所有者が異なる為、内装や設備が変更されている場合がございます。
※ペットの飼育やSOHO利用に関しては、建物自体が許可を出していても、所有者の意向により禁止とされている場合もございますのでご注意ください。
(30代/男性/1DK)
2022/10/02
目黒川に近く希望通りの立地条件でした。共用部にコワーキングスペースがあるところも決め手になりました。
弓田(女性)
2022/09/25
東急目黒線不動前駅徒歩6分、JR山手線・南北線・都営三田線目黒駅徒歩10分の場所に当物件はございました。
駅からのアクセス良好ながらも、目黒川沿いの緑多く感じられる閑静な住宅街に当物件は立地しており「都会の喧騒を忘れる」という表現にふさわしい住環境です。
天井高のあるガラス張りのロビーと個性的な色合いが相まった外観が人目を引く立派な佇まいでした。
物件内はシックな黒の色合いで統一されており、重厚感のあるエントランスを抜けると広々とした内廊下が広がっています。
お部屋のタイプは単身用、ファミリー向けと幅広く、あらゆるライフスタイルに対応した物件です。
また全住戸にスマホアプリやスマートスピーカーを使い、住設機器・家電などの機器をまとめて操作・管理できる総合スマートホームサービスが搭載されており、最新鋭の生活を体験することができます。
※これらの口コミは、ご成約者様や営業スタッフによる主観的な意見や感想です。建物の価値を客観的に評価するものではありません。あくまでも一つの参考としてご活用ください。
空室確認・内覧予約・空き待ちをご希望のお客様は、こちらよりお気軽にお問い合わせください。
03-6890-7755