

仲介手数料無料キャンペーン中です。
※キャンペーン内容は売買、賃貸、お部屋により異なります。
エレベーター,オートロック,宅配ボックス,TVドアホン,駐輪場,敷地内ゴミ置き場,内廊下,防犯カメラ,BS,CS,CATV,インターネット
※掲載情報が現況と異なる場合は、現況を優先させていただきます。
※キャンペーン情報は予告なく変更・終了する場合がございます。詳細はお問い合わせください。
※部屋により敷金・礼金・キャンペーンの内容が異なる場合がございますので、詳しい情報は各部屋ページにてご確認ください。
※分譲賃貸は部屋によって所有者が異なる為、内装や設備が変更されている場合がございます。
※ペットの飼育やSOHO利用に関しては、建物自体が許可を出していても、所有者の意向により禁止とされている場合もございますのでご注意ください。
長澤(男性)
2024/10/22
JR山手線、東急目黒線、東京メトロ南北線が乗り入れる【目黒駅】から徒歩5分ほどの好立地にこちらのマンションはございます。1号棟から4号棟までがコの字型に立ち並んでおり、中心には解放的な中庭が設けられています。敷地と隣接した場所にはコンビニエンスストアやファミリーレストラン、周辺にも飲食店などが多くとても快適な住環境です。また敷地を植栽で囲われているため、都心にいながらも自然と一体化しているような気分にさせてくれます。
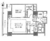
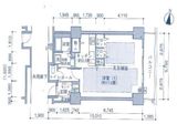
今回は4号棟12階の1LDKタイプをご案内しました。フローリングはブラウン、壁は白基調の落ち着いた印象になっており、設備も新しいものに一新されておりました。特に眺望が素晴らしく、西向きの住戸でしたので目黒区から世田谷区までを見渡せるような位置にございました。また敷地内には合計で8つの集会所が用意してあり、学童や定期的に行われる習い事教室などに使われることが多いようです。老若男女、単身からファミリーまで幅広い層にご検討いただけそうな物件だと感じました。
(20代/男性/2LDK)
2023/02/09
いままで見たことのないくらい眺望が良かった。
交通の便が良く、飲食店・スーパーも多く便利。
キッチンの使いやすさや収納が多く全体的に気に入った。
(40代/男性/1K)
2017/12/18
収納も多く思っていたより部屋が広く感じた。
日当たりもよく明るい室内だった。
共用部もきれい。
※これらの口コミは、ご成約者様や営業スタッフによる主観的な意見や感想です。建物の価値を客観的に評価するものではありません。あくまでも一つの参考としてご活用ください。
空室確認・内覧予約・空き待ちをご希望のお客様は、こちらよりお気軽にお問い合わせください。
03-6890-7755