

仲介手数料無料キャンペーン中です。
※キャンペーン内容は売買、賃貸、お部屋により異なります。
備考:
【駐車場】
24台(平置1台、機械式23台)
平置:45,150円 機械式:38,850~44,100円/月額
全長5050~5300mm・全幅1850~1950mm・全高1550~2100mm・重量2000~2300kg
【バイク置場】小型(原付きサイズ)9台
【駐輪場】71台
【ペット】小型犬2匹まで(猫不可・飼育時敷金3ヶ月)
【楽器】アップライトピアノ相談可
※駐輪場・バイク置き場・駐車場の空き状況等詳細につきましてはお問い合わせください。
エレベーター,オートロック,宅配ボックス,TVドアホン,駐車場,大型駐車場,バイク置き場,駐輪場,敷地内ゴミ置き場,内廊下,24時間管理,防犯カメラ,BS,CS,CATV,インターネット,楽器可
※掲載情報が現況と異なる場合は、現況を優先させていただきます。
※キャンペーン情報は予告なく変更・終了する場合がございます。詳細はお問い合わせください。
※部屋により敷金・礼金・キャンペーンの内容が異なる場合がございますので、詳しい情報は各部屋ページにてご確認ください。
※分譲賃貸は部屋によって所有者が異なる為、内装や設備が変更されている場合がございます。
※ペットの飼育やSOHO利用に関しては、建物自体が許可を出していても、所有者の意向により禁止とされている場合もございますのでご注意ください。
(40代/男性/1K)
2021/06/05
共有部にゆとりがあり、明るく健康的な印象でした。建物の安心感もあり成約に至りました。
大賀
2016/07/03
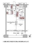
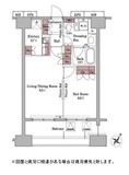
物件は目黒通り沿いに建っており、白金駅1番出口から出て、迷わずに物件まで辿り着けます。物件周辺には飲食店が多く、また24時間営業しているドン・キホーテも徒歩圏内にあり、急な買い物にも対応が可能です。私がご案内した1kタイプの南東向きの居室は、日当たりが良好で、間取りも綺麗な四角形で梁がなく、家具家電をレイアウトしやすそうな印象でした。
※これらの口コミは、ご成約者様や営業スタッフによる主観的な意見や感想です。建物の価値を客観的に評価するものではありません。あくまでも一つの参考としてご活用ください。
空室確認・内覧予約・空き待ちをご希望のお客様は、こちらよりお気軽にお問い合わせください。
03-6890-7755