

仲介手数料無料+礼金0キャンペーン中です。
※キャンペーン内容は売買、賃貸、お部屋により異なります。
備考:
【駐車場】158台 26,250円~28,350円/月額
全長5,050mm・全幅1,850mm・全高1,500mm・重量2,000kg
【バイク置き場】13台 3,150円/月額
【駐輪場】672台 登録制
【ペット】C棟とD棟の4階~7階のみ 小型犬または猫1匹(飼育時敷金1ヶ月積み増し) ※駐輪場・バイク置き場・駐車場の空き状況等詳細につきましてはお問い合わせください。
エレベーター,オートロック,宅配ボックス,TVドアホン,駐車場,バイク置き場,駐輪場,キッズルーム,敷地内ゴミ置き場,防犯カメラ,BS,CS,CATV,インターネット
※掲載情報が現況と異なる場合は、現況を優先させていただきます。
※キャンペーン情報は予告なく変更・終了する場合がございます。詳細はお問い合わせください。
※部屋により敷金・礼金・キャンペーンの内容が異なる場合がございますので、詳しい情報は各部屋ページにてご確認ください。
※分譲賃貸は部屋によって所有者が異なる為、内装や設備が変更されている場合がございます。
※ペットの飼育やSOHO利用に関しては、建物自体が許可を出していても、所有者の意向により禁止とされている場合もございますのでご注意ください。
深見(女性)
2025/01/14
東京都メトロ有楽町線「豊洲駅」徒歩6分に位置する当物件は、最寄りの1C番出口からですと殆どが大通りを辿る経路のため体感距離は短く感じられました。
A〜E棟からなる5棟構成で、メインエントランスはB棟中庭側、サブエントランスはD棟公道側にございます。
エレベーターはエントランスのある棟それぞれ2基ずつ備わっており、A棟とE棟の間は3〜5階のみ渡り廊下がございました。
中庭には「都心の森」と「落水の水辺」や「芝生パティオ」があり、訪れた際には季節柄紅葉が鮮やかでとても印象的でした。
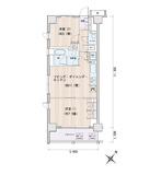
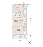
拝見した38.42㎡の縦並び1LDKがラインナップの大半を占めており、広めのお部屋をご希望の単身の方からDINKSの方にもおすすめです。
寝室は6帖を超えており、収納家具を好きに配置したり、シングルベッドを2つ並べたりと家具レイアウトの自由度が高く感じられました。
(20代/男性/1DK)
2020/07/05
外観もきれいでセキュリティもしっかりしていて好印象でした。共用部の設備も充実していました。周辺環境も充実していて住みやすそうです。
(20代/男性/1LDK)
2019/10/02
想像していた通り、リビングも寝室も広く、満足です。
部屋もとても綺麗でした。
エントランスには宅配ボックスが設置されていて便利。希望にあった物件でした。
※これらの口コミは、ご成約者様や営業スタッフによる主観的な意見や感想です。建物の価値を客観的に評価するものではありません。あくまでも一つの参考としてご活用ください。
空室確認・内覧予約・空き待ちをご希望のお客様は、こちらよりお気軽にお問い合わせください。
03-6890-7755