

仲介手数料無料+礼金0キャンペーン中です。
※キャンペーン内容は売買、賃貸、お部屋により異なります。
エレベーター,オートロック,宅配ボックス,TVドアホン,ペット足洗い場,駐車場,バイク置き場,駐輪場,ラウンジ,敷地内ゴミ置き場,内廊下,防犯カメラ,BS,CS,CATV,インターネット
※掲載情報が現況と異なる場合は、現況を優先させていただきます。
※キャンペーン情報は予告なく変更・終了する場合がございます。詳細はお問い合わせください。
※部屋により敷金・礼金・キャンペーンの内容が異なる場合がございますので、詳しい情報は各部屋ページにてご確認ください。
※分譲賃貸は部屋によって所有者が異なる為、内装や設備が変更されている場合がございます。
※ペットの飼育やSOHO利用に関しては、建物自体が許可を出していても、所有者の意向により禁止とされている場合もございますのでご注意ください。
深見(女性)
2025/01/14
東京メトロ銀座線「稲荷町駅」3番出口からほど近い当物件は、大通りから少し入った閑静なエリアにございます。
1階テナントにはスーパーマーケットが入っており、生活利便性の高さがポイントです。マンション内には無人コンビニもあり、テナントの営業時間外でも外出無しのお買い物が叶います。
共用部にも様々な特色があり、1階・オープンラウンジや2階・ブックラウンジに加えて、各階には全住戸分の宅配ボックスも完備されておりました。
また、各住戸の専有部にはIotスマートホームのデバイスが設置されており、アプリを使った家電の自動操作やスマートスピーカーを通じたスマートホーム機器の音声操作が可能です。
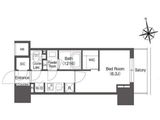
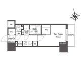
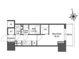
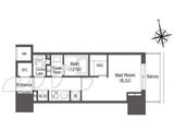
総戸数190戸の中には1Rから3LDKまでの幅広いタイプが用意されており、今回ご案内したのは単身向け間取りでした。
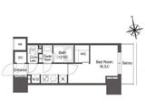
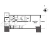
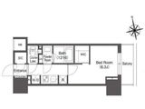
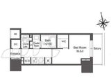
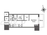
特筆すべきは25.16㎡の1Rタイプで、コンロが備わっておらずシンク横には作業スペースのみ、キッチン隣にはデスクワーク等に使えそうなカウンターが設けられておりました。
クローゼットは全て廊下に配置され、居室側は極力デッドスペースが生まれないような工夫が見られました。
75.42㎡/2LDKタイプと76.49㎡/3LDKタイプには床暖房と食器洗浄機があり、単身の方のみならずファミリーの方にもおすすめです。
※これらの口コミは、ご成約者様や営業スタッフによる主観的な意見や感想です。建物の価値を客観的に評価するものではありません。あくまでも一つの参考としてご活用ください。
空室確認・内覧予約・空き待ちをご希望のお客様は、こちらよりお気軽にお問い合わせください。
03-6890-7755