

礼金0キャンペーン中です。
※キャンペーン内容は売買、賃貸、お部屋により異なります。
備考:
【駐車場】656台 ※別途管理用5台、来客用7台 25,000円~30,000円/月額(税別)
【バイク置き場】112台 1,000円・2,000円/月額(税別)
【駐輪場】2,220台 ※別途来客用15台、レンタサイクル用20台 100円/月額(税別)
【共用施設】
《ベイズ》
1階
・キッズガーデン
・ベイサイドラウンジ
31階
・ゲストルーム(プレミアムスイート30階/トップスイート31階)
・パーティスペース
・ライブラリー
・ラウンジ&バー
最上階
・スカイデッキ
《スカイズ》
1階
・フィットネス&スパ
・スタディールーム
・ガーデンラウンジ/コモンラウンジ
・キッズルーム
・カルチャールーム
・パーティルーム
・コミュニティハウス
43階
・ゲストルーム(ノルディック/ジャパニーズ/オリエンタル/ミラン スイート)
44階
・ビューラウンジ(サンライズ/サンセット)
最上階
・スカイラウンジ
・天体観測ドーム
【構造】免・制震ハイブリッドシステム
【こちらもご覧下さい(敷地内別棟)】
ベイズタワー&ガーデン ※駐輪場・バイク置き場・駐車場の空き状況等詳細につきましてはお問い合わせください。
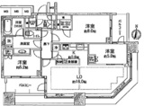
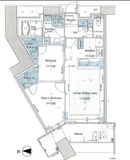
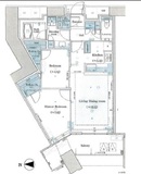
エレベーター,オートロック,宅配ボックス,TVドアホン,駐車場,大型駐車場,バイク置き場,駐輪場,ラウンジ,キッズルーム,コンシェルジュ,フィットネスジム,プール,ゲストルーム,パーティールーム,シアタールーム,敷地内ゴミ置き場,各階ゴミ置き場,内廊下,24時間管理,防犯カメラ,BS,CS,CATV,インターネット,閑静な住宅街,免震・制震
※掲載情報が現況と異なる場合は、現況を優先させていただきます。
※キャンペーン情報は予告なく変更・終了する場合がございます。詳細はお問い合わせください。
※部屋により敷金・礼金・キャンペーンの内容が異なる場合がございますので、詳しい情報は各部屋ページにてご確認ください。
※分譲賃貸は部屋によって所有者が異なる為、内装や設備が変更されている場合がございます。
※ペットの飼育やSOHO利用に関しては、建物自体が許可を出していても、所有者の意向により禁止とされている場合もございますのでご注意ください。
村上(男性)
2015/07/11
44階建ての独特な外観は存在感を感じます。エレベーターホールから共用廊下まで高級ホテルに居るような印象です。部屋により異なりますが『スカイツリー』や『東京タワー』を望むことが出来る他、44階の展望ホールは360°見渡せ都内全域を一望、夏の花火大会や夜景を楽しむことが出来ます。内覧時に是非一度肌で感じて頂きたく思います。
※これらの口コミは、ご成約者様や営業スタッフによる主観的な意見や感想です。建物の価値を客観的に評価するものではありません。あくまでも一つの参考としてご活用ください。
空室確認・内覧予約・空き待ちをご希望のお客様は、こちらよりお気軽にお問い合わせください。
03-6890-7755