トップへ戻る ZOOM王子神谷

9264-1104

ZOOM王子神谷 成約済み物件 (9264-1104)

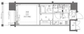
  • ZOOM王子神谷 11階 間取り図
  • ZOOM王子神谷 物件写真 建物写真1
  • ZOOM王子神谷 物件写真 建物写真2
  • ZOOM王子神谷 物件写真 建物写真6
  • ZOOM王子神谷 物件写真 建物写真8
  • ZOOM王子神谷 物件写真 建物写真10
建物詳細ページを見る

物件概要

物件名
ZOOM王子神谷
賃料
---円
共益費/
管理費
---円
敷金
---ヶ月
礼金
---ヶ月
仲介
手数料
---ヶ月
フリー
レント
---ヶ月
その他費用
---
間取り
1K
(洋室7.45帖)
専有面積
25.58m2
所在階/
総階数
11階/地上14階 
入居
可能時期
---
情報登録日
2021年11月30日
情報更新日
2023年5月8日
所在地
東京都北区神谷3-44-19地図
交通
東京メトロ南北線王子神谷駅」徒歩7分
JR京浜東北線東十条駅」徒歩12分


問合番号
9264-1104
物件特徴
ペット可
更新料
---ヶ月
築年月
2021年12月
総戸数
58戸
建物構造
RC造
保険
要加入
保証会社
利用必須
方角
西
契約形態
普通賃貸借契約
ペット
可 
SOHO・
事務所
不可 
取引態様
媒介

備考:

more

建物設備

エレベーター,オートロック,宅配ボックス,TVドアホン,駐輪場,防犯カメラ,BS,CS,CATV,インターネット,バリアフリー

部屋設備

独立洗面台,追い焚き,ウォシュレット,浴室乾燥機,システムキッチン,ガスコンロ,エアコン,ダブルロックキー,フローリング

募集中住戸一覧

1室表示

チェックした部屋について

問い合わせる 検討中リストに追加

※掲載情報が現況と異なる場合は、現況を優先させていただきます。
※キャンペーン情報は予告なく変更・終了する場合がございます。詳細はお問い合わせください。
※部屋により敷金・礼金・キャンペーンの内容が異なる場合がございますので、詳しい情報は各部屋ページにてご確認ください。
※分譲賃貸は部屋によって所有者が異なる為、内装や設備が変更されている場合がございます。
※ペットの飼育やSOHO利用に関しては、建物自体が許可を出していても、所有者の意向により禁止とされている場合もございますのでご注意ください。

おすすめ物件情報

最近見た物件

閉じる

検討中リストに追加しました。

ページ上部の検討中リストより、追加した部屋情報が確認できます。

ページ上部の検討中リストより、追加した部屋情報が確認できます。