

フリーレントキャンペーン中です。
※キャンペーン内容は売買、賃貸、お部屋により異なります。
エレベーター,オートロック,宅配ボックス,TVドアホン,バイク置き場,駐輪場,敷地内ゴミ置き場,防犯カメラ,BS,CS,CATV,インターネット
※掲載情報が現況と異なる場合は、現況を優先させていただきます。
※キャンペーン情報は予告なく変更・終了する場合がございます。詳細はお問い合わせください。
※部屋により敷金・礼金・キャンペーンの内容が異なる場合がございますので、詳しい情報は各部屋ページにてご確認ください。
※分譲賃貸は部屋によって所有者が異なる為、内装や設備が変更されている場合がございます。
※ペットの飼育やSOHO利用に関しては、建物自体が許可を出していても、所有者の意向により禁止とされている場合もございますのでご注意ください。
福島(男性)
2022/04/26
西武池袋線「椎名町駅」徒歩4分、東京メトロ有楽町線・副都心線「要町駅」徒歩7分の場所に物件はございます。
池袋、新宿方面へ乗り換え無しでアクセス可能な好立地となります。
私は要町から向かいましたが、出口を出てから物件まで山手通りに沿っており、夜道も暗くなることがありません。
通り沿いということで騒音が懸念でしたが、バルコニーの窓が二重構造になっており音は全く気になりませんでした。
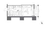
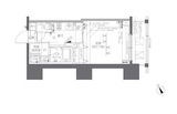
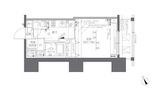
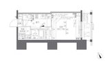
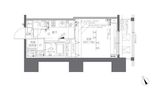
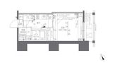
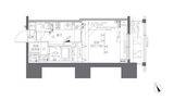
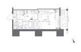
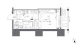
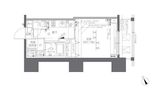
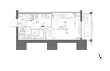
お部屋は1K~1LDKのラインナップ。
1Kをご案内いたしましたが、白を基調とし天井を高かったため実際の畳数よりも広く感じました。
※これらの口コミは、ご成約者様や営業スタッフによる主観的な意見や感想です。建物の価値を客観的に評価するものではありません。あくまでも一つの参考としてご活用ください。
空室確認・内覧予約・空き待ちをご希望のお客様は、こちらよりお気軽にお問い合わせください。
03-6890-7755