

仲介手数料無料+礼金0キャンペーン中です。
※キャンペーン内容は売買、賃貸、お部屋により異なります。
備考:
【駐車場】
平置き自走式 24,150〜29,400円
小型車 全長4.350mm 全幅2400mm 全高2.100mm重量2.0kg
普通車 全長5.000mm 全幅2400mm 全高2.100mm重量2.0kg
優先 全長5.000mm 全幅2500mm 全高2.400mm重量2.0kg
【駐輪場】各住戸無料で貸出
28.41㎡~42.50㎡ 1台
58.55㎡~62.96㎡ 2台
71.61㎡~ 3台
駐輪場ステッカー代1,000円
【バイク置き場】
全長2.000mm 全幅750mm 全高2.600mm 5,250円/月額
全長2.000mm 全幅1.000mm 全高2.400mm 5,250円/月額
【ペット】小型犬または猫2匹(飼育時敷金1ヶ月積み増し) ※駐輪場・バイク置き場・駐車場の空き状況等詳細につきましてはお問い合わせください。
エレベーター,オートロック,宅配ボックス,TVドアホン,駐車場,バイク置き場,駐輪場,ラウンジ,敷地内ゴミ置き場,内廊下,防犯カメラ,BS,CS,CATV,インターネット,閑静な住宅街,楽器可
※掲載情報が現況と異なる場合は、現況を優先させていただきます。
※キャンペーン情報は予告なく変更・終了する場合がございます。詳細はお問い合わせください。
※部屋により敷金・礼金・キャンペーンの内容が異なる場合がございますので、詳しい情報は各部屋ページにてご確認ください。
※分譲賃貸は部屋によって所有者が異なる為、内装や設備が変更されている場合がございます。
※ペットの飼育やSOHO利用に関しては、建物自体が許可を出していても、所有者の意向により禁止とされている場合もございますのでご注意ください。
中川(女性)
2021/02/14
東京メトロ有楽町線「辰巳」駅より約徒歩5分、辰巳の森緑道公園の中を通り抜けると本物件はございました。
都心へのアクセスの良さもさることながら、自然も感じられるため非常に魅力的です。
エントランスは高級感があり、内廊下なので全体的に落ち着いた雰囲気でした。
総戸数300戸と大規模マンションでしたが、メインエントランスとサブエントランスがあり、エレベーターも3つあったため、朝の混雑は避けられそうです。
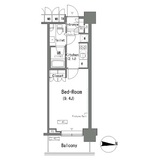
私がご案内をした1Kタイプのお部屋は、11.5帖の居室空間に加えデッドスペースも無く、とても広く感じました。
収納も広めのウォークインクローゼットがあり、お荷物が多い方にもお勧めです。
(50代/女性/3LDK)
2017/12/28
公園に囲まれていて静かな環境。
エントランスがしっかりしている。共用部の清掃が行き届いていて快適。
ゴミ置き場もきれいに整理されていた。
※これらの口コミは、ご成約者様や営業スタッフによる主観的な意見や感想です。建物の価値を客観的に評価するものではありません。あくまでも一つの参考としてご活用ください。
空室確認・内覧予約・空き待ちをご希望のお客様は、こちらよりお気軽にお問い合わせください。
03-6890-7755