

仲介手数料無料+礼金0キャンペーン中です。
※キャンペーン内容は売買、賃貸、お部屋により異なります。
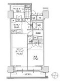
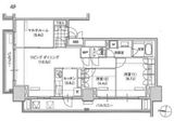
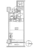
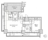
備考:
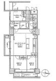
【駐車場】172台(平置4台・機械式168台)
【バイク置場】43台 2,100円/月額
【駐輪場】846台
【インターネット】利用料無料
【ペット】低層棟のみ飼育可能(小型犬一匹のみ)
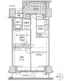
【共用施設】
・コンシェルジュサービス
ハウスクリーニング業者紹介
コピー&FAXサービス(実費要)
タクシーの手配
寝具レンタルのご案内
宅配便の発送
クリーニングの取り次ぎ
・コミュニティサロン
・ミーティングスペース(パーティー利用可)
【保育園】低層棟1F ※駐輪場・バイク置き場・駐車場の空き状況等詳細につきましてはお問い合わせください。
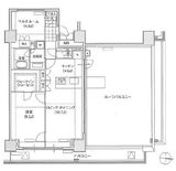
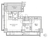
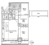
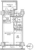
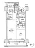
エレベーター,オートロック,宅配ボックス,TVドアホン,ペット足洗い場,駐車場,大型駐車場,バイク置き場,駐輪場,ラウンジ,コンシェルジュ,パーティールーム,敷地内ゴミ置き場,24時間管理,防犯カメラ,BS,CS,CATV,インターネット
※掲載情報が現況と異なる場合は、現況を優先させていただきます。
※キャンペーン情報は予告なく変更・終了する場合がございます。詳細はお問い合わせください。
※部屋により敷金・礼金・キャンペーンの内容が異なる場合がございますので、詳しい情報は各部屋ページにてご確認ください。
※分譲賃貸は部屋によって所有者が異なる為、内装や設備が変更されている場合がございます。
※ペットの飼育やSOHO利用に関しては、建物自体が許可を出していても、所有者の意向により禁止とされている場合もございますのでご注意ください。
(20代/男性)
2022/08/04
キレイで広さと形ともに十分だったため。
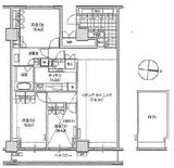
(50代/女性/1LDK)
2022/03/04
駐車場付きで間取りも広かったため成約に至りました。
(50代/女性/1K)
2018/05/09
室内は狭いが環境が良い。
設備や内装はきれい。
※これらの口コミは、ご成約者様や営業スタッフによる主観的な意見や感想です。建物の価値を客観的に評価するものではありません。あくまでも一つの参考としてご活用ください。
空室確認・内覧予約・空き待ちをご希望のお客様は、こちらよりお気軽にお問い合わせください。
03-6890-7755