

備考:
【駐車場】
46,000・48,000・53,000円/月額
全長5,000・5,300mm・全幅1,850・2,050mm・全高1,550・2,050mm・重量1,900・2,300・2,500kg
【バイク置き場】有
【駐輪場】有
【共用施設】
・フロントコンシェルジュ、レセプションサービス
・プレミアムラウンジ(28階) 通常無料 貸切時:1,000/1時間 8時~21時
・クラブスイート(ゲストルーム)8,000円/1泊 15時~翌11時
・エグゼクティブスタディ 500円/1時間 8時~21時
・セキュリティスタッフ
・トータルアテンダント
・ストーンガーデン ※駐輪場・バイク置き場・駐車場の空き状況等詳細につきましてはお問い合わせください。
エレベーター,オートロック,宅配ボックス,TVドアホン,駐車場,大型駐車場,バイク置き場,駐輪場,ラウンジ,コンシェルジュ,ゲストルーム,敷地内ゴミ置き場,各階ゴミ置き場,内廊下,24時間管理,防犯カメラ,BS,CS,CATV,インターネット,免震・制震
※掲載情報が現況と異なる場合は、現況を優先させていただきます。
※キャンペーン情報は予告なく変更・終了する場合がございます。詳細はお問い合わせください。
※部屋により敷金・礼金・キャンペーンの内容が異なる場合がございますので、詳しい情報は各部屋ページにてご確認ください。
※分譲賃貸は部屋によって所有者が異なる為、内装や設備が変更されている場合がございます。
※ペットの飼育やSOHO利用に関しては、建物自体が許可を出していても、所有者の意向により禁止とされている場合もございますのでご注意ください。
松野(男性)
2017/03/25
東京メトロ日比谷線「神谷町駅」から徒歩4分程の場所で、大通りから一本中に入っており、とても静かな場所でした。
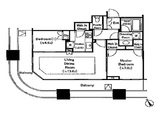
ご案内したお部屋は13階の角部屋で、窓が大きく、目の前には「東京タワー」が大きく見えました。
マンションと東京タワーの距離感も程良く、遮る建物も無いため、東京タワービューでお探しの方にも大変お勧めです。
※これらの口コミは、ご成約者様や営業スタッフによる主観的な意見や感想です。建物の価値を客観的に評価するものではありません。あくまでも一つの参考としてご活用ください。
空室確認・内覧予約・空き待ちをご希望のお客様は、こちらよりお気軽にお問い合わせください。
03-6890-7755
