

仲介手数料無料+礼金0キャンペーン中です。
※キャンペーン内容は売買、賃貸、お部屋により異なります。
備考:
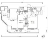
【駐車場】47台 47,250円~57,750円/月額
全長5,300mm・全幅1,860mm・全高1,550mm・重量2,300kg
【バイク置場】4台 8,400円/月額
【駐輪場】80台 2,000円/月額
【コンシェルジュサービス】13:00~21:00
来訪者の受付・案内
宅配便の一時預かりサービス
タクシー手配サービス
クリ―ニング取次サービス
各業者紹介サービス
メッセージ預かり
※駐輪場・バイク置き場・駐車場の空き状況等詳細につきましてはお問い合わせください。
エレベーター,オートロック,宅配ボックス,TVドアホン,駐車場,バイク置き場,駐輪場,コンシェルジュ,敷地内ゴミ置き場,内廊下,24時間管理,防犯カメラ,BS,CS,CATV
※掲載情報が現況と異なる場合は、現況を優先させていただきます。
※キャンペーン情報は予告なく変更・終了する場合がございます。詳細はお問い合わせください。
※部屋により敷金・礼金・キャンペーンの内容が異なる場合がございますので、詳しい情報は各部屋ページにてご確認ください。
※分譲賃貸は部屋によって所有者が異なる為、内装や設備が変更されている場合がございます。
※ペットの飼育やSOHO利用に関しては、建物自体が許可を出していても、所有者の意向により禁止とされている場合もございますのでご注意ください。
(40代/女性/1R)
2023/02/09
周辺環境や立地が良かった。
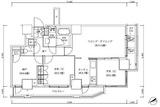
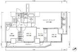
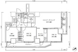
間取りがレイアウトしやすような形で気に入った。
齋藤(男性)
2022/02/14
都営三田線「御成門駅」と日比谷線「神谷町駅」が徒歩圏内にある好立地の賃貸マンションです。
都心部にありながら愛宕神社が隣接している関係で周辺には緑も多く、芝公園も徒歩圏内にある落ち着いた住環境でした。
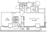
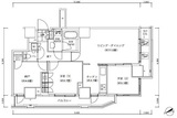
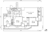
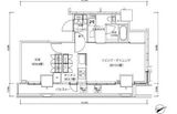
お部屋は1R~3LDKまで幅広い間取りをご用意しており、エントランスを入ってすぐにフロントコンシェルジュが常駐してますので快適な暮らしのサポートや多彩なサービスをご利用いただけます。
高層階からは都心部が見渡せる眺望で、特に南向きのお部屋は低層階でも目の前に東京タワーを足元から望むことができ、東京タワービューでお探しの方には気に入っていただける物件だと思います。
(30代/男性/1K)
2022/01/08
写真で拝見していた通りの建物で、立地および条件・利用目的に合致していたため成約に至りました。
※これらの口コミは、ご成約者様や営業スタッフによる主観的な意見や感想です。建物の価値を客観的に評価するものではありません。あくまでも一つの参考としてご活用ください。
空室確認・内覧予約・空き待ちをご希望のお客様は、こちらよりお気軽にお問い合わせください。
03-6890-7755