

礼金0キャンペーン中です。
※キャンペーン内容は売買、賃貸、お部屋により異なります。
備考:
【駐車場】50台 50,000円~60,000円/月(税別)
(3段機械式47台、平置1台、身障者用平置1台、来客用平置1台)
【バイク置き場】3台(平置) 3,000円/月
【駐輪場】71台 300円~600円/月(税別)
(傾斜ラック式・2段ラック下部スライド式)
【トランクルーム】17区画 1,700円~6,700円/月
【共用施設】
・ミーティングルーム ※駐輪場・バイク置き場・駐車場の空き状況等詳細につきましてはお問い合わせください。
エレベーター,オートロック,宅配ボックス,TVドアホン,トランクルーム,ペット足洗い場,駐車場,大型駐車場,バイク置き場,駐輪場,コンシェルジュ,敷地内ゴミ置き場,防犯カメラ,BS,CATV,インターネット
※掲載情報が現況と異なる場合は、現況を優先させていただきます。
※キャンペーン情報は予告なく変更・終了する場合がございます。詳細はお問い合わせください。
※部屋により敷金・礼金・キャンペーンの内容が異なる場合がございますので、詳しい情報は各部屋ページにてご確認ください。
※分譲賃貸は部屋によって所有者が異なる為、内装や設備が変更されている場合がございます。
※ペットの飼育やSOHO利用に関しては、建物自体が許可を出していても、所有者の意向により禁止とされている場合もございますのでご注意ください。
楠瀬(男性)
2022/08/25
東京メトロ南北線「六本木一丁目駅」から3分、街路樹が美しい通りに面した丘の上にある上質な高級マンションです。
建物はインナーコア構造を採用しており、コーナー部分に柱が少なくお部屋からの景色も美しく見えます。
また、全タイプ角部屋のため、どのお部屋もとても開放的です。
二重床や二重天井、免震構造といった質の高いところも魅力的です。
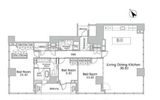
今回ご案内したお部屋は、かなり広めのアイランドキッチンを採用しており、お料理好きの方には必見の設備となっておりました。都心でハイグレードレジデンスを求められる方に、お勧めの物件です。
※これらの口コミは、ご成約者様や営業スタッフによる主観的な意見や感想です。建物の価値を客観的に評価するものではありません。あくまでも一つの参考としてご活用ください。
空室確認・内覧予約・空き待ちをご希望のお客様は、こちらよりお気軽にお問い合わせください。
03-6890-7755
