

仲介手数料無料+礼金0キャンペーン中です。
※キャンペーン内容は売買、賃貸、お部屋により異なります。
エレベーター,オートロック,宅配ボックス,TVドアホン,駐車場,大型駐車場,バイク置き場,駐輪場,ラウンジ,敷地内ゴミ置き場,内廊下,24時間管理,防犯カメラ,BS,CS,CATV,インターネット,閑静な住宅街
※掲載情報が現況と異なる場合は、現況を優先させていただきます。
※キャンペーン情報は予告なく変更・終了する場合がございます。詳細はお問い合わせください。
※部屋により敷金・礼金・キャンペーンの内容が異なる場合がございますので、詳しい情報は各部屋ページにてご確認ください。
※分譲賃貸は部屋によって所有者が異なる為、内装や設備が変更されている場合がございます。
※ペットの飼育やSOHO利用に関しては、建物自体が許可を出していても、所有者の意向により禁止とされている場合もございますのでご注意ください。
松野(男性)
2017/03/24
JR山手線「目黒駅」の正面口を出て、目黒通りを白金台の方面へ進みます。
そこから中へ30m程入った場所に建っており、周辺は住宅街のためとても静かな環境でした。
目黒駅と白金台駅のちょうど中間辺りの位置で、両駅が利用できます。
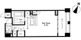
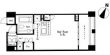
ご案内したお部屋は1LDKタイプで58㎡程あり、広々としたリビングです。
また、バルコニーはお洒落なウッドデッキ仕様になっていました。
※これらの口コミは、ご成約者様や営業スタッフによる主観的な意見や感想です。建物の価値を客観的に評価するものではありません。あくまでも一つの参考としてご活用ください。
空室確認・内覧予約・空き待ちをご希望のお客様は、こちらよりお気軽にお問い合わせください。
03-6890-7755