

備考:
【駐車場】機械式35,000円~(税別)/月額
大型 全長5300mm 全幅1900mm 全高1550mm
大型 全長5000mm 全幅1850mm 全高1550mm
【バイク置場】有
【駐輪場】有 ※駐輪場・バイク置き場・駐車場の空き状況等詳細につきましてはお問い合わせください。
エレベーター,オートロック,宅配ボックス,TVドアホン,駐車場,大型駐車場,バイク置き場,駐輪場,ラウンジ,コンシェルジュ,敷地内ゴミ置き場,内廊下,防犯カメラ,BS,CS,CATV,インターネット,免震・制震
※掲載情報が現況と異なる場合は、現況を優先させていただきます。
※キャンペーン情報は予告なく変更・終了する場合がございます。詳細はお問い合わせください。
※部屋により敷金・礼金・キャンペーンの内容が異なる場合がございますので、詳しい情報は各部屋ページにてご確認ください。
※分譲賃貸は部屋によって所有者が異なる為、内装や設備が変更されている場合がございます。
※ペットの飼育やSOHO利用に関しては、建物自体が許可を出していても、所有者の意向により禁止とされている場合もございますのでご注意ください。
村上(男性)
2016/10/15
「白金台駅」2番出口より歩道橋を渡って直ぐ場所に物件は位置します。
駅からは1分程で到着します。
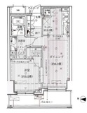
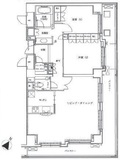
ご案内したお部屋は1LDKタイプのお部屋です。キッチンは独立しておりませんがコンパクトに収まったキッチンスペースにも無駄を感じませんでした。一見、収納が少ないように感じましたがシューズインクローゼットもあり収納スペースも充分です。
少し築年数の経つマンションではありますが、しっかりと管理され外観、共用部共に清潔感を感じられます。
また桜田通りに面しておりますが騒音も然程気になりませんでした。
※これらの口コミは、ご成約者様や営業スタッフによる主観的な意見や感想です。建物の価値を客観的に評価するものではありません。あくまでも一つの参考としてご活用ください。
空室確認・内覧予約・空き待ちをご希望のお客様は、こちらよりお気軽にお問い合わせください。
03-6890-7755
