

仲介手数料無料キャンペーン中です。
※キャンペーン内容は売買、賃貸、お部屋により異なります。
備考:
【駐車場】9台
【バイク置き場】15台
【駐輪場】154台 1住戸につき1台無料
【ペット】小型犬2匹相談可 敷金1ヵ月積み増し ※駐輪場・バイク置き場・駐車場の空き状況等詳細につきましてはお問い合わせください。
エレベーター,オートロック,宅配ボックス,TVドアホン,駐車場,バイク置き場,駐輪場,敷地内ゴミ置き場,内廊下,防犯カメラ,BS,CS,CATV,インターネット,閑静な住宅街,楽器可
※掲載情報が現況と異なる場合は、現況を優先させていただきます。
※キャンペーン情報は予告なく変更・終了する場合がございます。詳細はお問い合わせください。
※部屋により敷金・礼金・キャンペーンの内容が異なる場合がございますので、詳しい情報は各部屋ページにてご確認ください。
※分譲賃貸は部屋によって所有者が異なる為、内装や設備が変更されている場合がございます。
※ペットの飼育やSOHO利用に関しては、建物自体が許可を出していても、所有者の意向により禁止とされている場合もございますのでご注意ください。
木野内(女性)
2020/06/08
江戸川橋駅を降り神田川を渡った先の住宅街に物件が建っており、マンションまでの道のりにはコンビニやスーバーなどもありました。
私がご案内した際には築15年程経っていたため設備などは少し古さを感じましたが、共有部・専有部ともに綺麗に管理されている印象でした。
目白通りと首都高が近くにあるため窓を開けると少し車の音が気になる気もしましたが、東向きも西向きも上層階は眺望が開けており、特に西向きのお部屋は日当たりが良い時間帯に行ったため、室内まで陽が入ってきてお部屋の居心地が良く感じました。
須賀(男性)
2018/10/26
東京メトロ有楽町線「江戸川橋駅」から徒歩5分程の所にございます。
駅を出てからすぐに高速道路があるので音が気になるかと思いましたが、
一本奥に入った閑静な住宅街にある為、音はほとんど気になりませんでした。
エントランスから更に中に入ると吹き抜けがあり、緑も多くとても開放的な空間となっております。
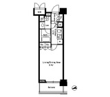
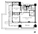
お部屋は1K~3LDKと、豊富なプランで様々なライフスタイルに対応できる物件だと感じました。室内からも車の音などは気になりませんでした。
また、ペットや楽器も相談が可能という点も魅力です。
(20代/男性/1K)
2018/01/20
思っていたよりきれいで広い。
建物がしっかりしている。
※これらの口コミは、ご成約者様や営業スタッフによる主観的な意見や感想です。建物の価値を客観的に評価するものではありません。あくまでも一つの参考としてご活用ください。
空室確認・内覧予約・空き待ちをご希望のお客様は、こちらよりお気軽にお問い合わせください。
03-6890-7755