

フリーレント+仲介手数料無料+礼金0キャンペーン中です。
※キャンペーン内容は売買、賃貸、お部屋により異なります。
備考:
【駐車場】平置き 17台 40,000円/月額(税込)全長2,300mm・全幅3,600mm
【ミニバイク置き場】30台 3,000円/月額(税別)
【駐輪場】2段式スライドラック 82台 300円/月額(税別)
平置き 7台 3,000円/月額(税別)
◇レンタサイクル 無料
※駐輪場・バイク置き場・駐車場の空き状況等詳細につきましてはお問い合わせください。
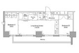
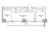
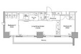
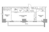
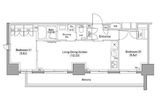
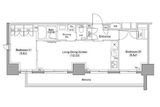
エレベーター,オートロック,宅配ボックス,TVドアホン,駐車場,大型駐車場,バイク置き場,駐輪場,フィットネスジム,敷地内ゴミ置き場,防犯カメラ,BS,CS,CATV,インターネット,楽器可
※掲載情報が現況と異なる場合は、現況を優先させていただきます。
※キャンペーン情報は予告なく変更・終了する場合がございます。詳細はお問い合わせください。
※部屋により敷金・礼金・キャンペーンの内容が異なる場合がございますので、詳しい情報は各部屋ページにてご確認ください。
※分譲賃貸は部屋によって所有者が異なる為、内装や設備が変更されている場合がございます。
※ペットの飼育やSOHO利用に関しては、建物自体が許可を出していても、所有者の意向により禁止とされている場合もございますのでご注意ください。
(30代/女性/1K)
2023/09/30
交通の便、周辺の店などが良いと感じました。共用部、外観も素敵です。
(20代/女性/1K)
2022/09/04
他の物件と比べ、築浅で水回りが綺麗な点が気に入りました。室内は綺麗で広くテレワークをするのにもぴったりと思います。
(20代/女性/1R)
2019/03/14
思ったよりも広く、内装は明るく清潔感があった。
また共用部も素晴らしかったです。
※これらの口コミは、ご成約者様や営業スタッフによる主観的な意見や感想です。建物の価値を客観的に評価するものではありません。あくまでも一つの参考としてご活用ください。
空室確認・内覧予約・空き待ちをご希望のお客様は、こちらよりお気軽にお問い合わせください。
03-6890-7755