

エレベーター,オートロック,宅配ボックス,TVドアホン,駐車場,バイク置き場,駐輪場,ラウンジ,敷地内ゴミ置き場,24時間管理,防犯カメラ,BS,CS,CATV,インターネット,閑静な住宅街
※掲載情報が現況と異なる場合は、現況を優先させていただきます。
※キャンペーン情報は予告なく変更・終了する場合がございます。詳細はお問い合わせください。
※部屋により敷金・礼金・キャンペーンの内容が異なる場合がございますので、詳しい情報は各部屋ページにてご確認ください。
※分譲賃貸は部屋によって所有者が異なる為、内装や設備が変更されている場合がございます。
※ペットの飼育やSOHO利用に関しては、建物自体が許可を出していても、所有者の意向により禁止とされている場合もございますのでご注意ください。
(30代/女性/1LDK)
2023/09/10
全体的にしっかりとした造りで気に入りました。内装も高級感があり、暮らしやすそうです。また初期費用を安く抑えることができ、良かったです。
吉田(男性)
2021/12/26
東京メトロ千代田線「湯島駅」より徒歩2分に位置し、徒歩10分圏内には更に4駅利用可能と各所への交通アクセスも抜群です。
当物件は湯島駅から西へ緩やかな坂を登り、ファサード周りの綺麗に整えられた植栽が目印の高級マンションです。
傾斜地に建っているため2階部分が歩道に面しておりますが、歩道から建物までのアプローチが長いため、外からの視線も気になりません。
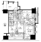
今回内覧した2階3LDK68㎡の角部屋は、ディスポーザーや床暖房など分譲マンションならではの設備が備えられ、南向きの3部屋は燦々とした日当りが印象的でお客様もとても喜ばれておりました。
鵜ノ澤(男性)
2017/12/21
東京メトロ千代田線「湯島駅」徒歩2分の立地に建ち、他にも複数路線が徒歩圏内で使用可能の為利便性がとても良くなっています。
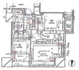
物件は広めの敷地に建っていて広々としたエントランスやロビー、1階にある共有スペースの中庭など高級感溢れる造りになっています。お部屋は1LDKタイプのお部屋をご案内致しましたが、食洗機やディスポーザーやスチームサウナなど設備が充実していて住環境はとても良く感じました。
近隣にはスーパーや飲食店も多い為お勧めのエリアになります。
※これらの口コミは、ご成約者様や営業スタッフによる主観的な意見や感想です。建物の価値を客観的に評価するものではありません。あくまでも一つの参考としてご活用ください。
空室確認・内覧予約・空き待ちをご希望のお客様は、こちらよりお気軽にお問い合わせください。
03-6890-7755
