

仲介手数料無料+礼金0キャンペーン中です。
※キャンペーン内容は売買、賃貸、お部屋により異なります。
備考:
【駐車場】138台:機械式27,300円~39,900円/月額
【バイク置き場】13台:3,150円~8,400円/月額
【駐輪場】1台目無料、2台目以降は315円/月額
【共用施設】
・シアタールーム
・クリーニングボックス
【コンシェルジュサービス】
・クリーニング取次サービス
・ルームクリーニング取次サービス
・ハウスメイド紹介サービス
・宅配便の発送取次サービス
・物品販売サービス
・インフォメーション・サービス
【こちらもご覧下さい(敷地内別棟)】レジディアタワー上池袋 パーク棟 ※駐輪場・バイク置き場・駐車場の空き状況等詳細につきましてはお問い合わせください。
エレベーター,オートロック,宅配ボックス,TVドアホン,駐車場,駐輪場,ラウンジ,コンシェルジュ,シアタールーム,敷地内ゴミ置き場,内廊下,防犯カメラ,BS,CS,CATV,インターネット,楽器可
※掲載情報が現況と異なる場合は、現況を優先させていただきます。
※キャンペーン情報は予告なく変更・終了する場合がございます。詳細はお問い合わせください。
※部屋により敷金・礼金・キャンペーンの内容が異なる場合がございますので、詳しい情報は各部屋ページにてご確認ください。
※分譲賃貸は部屋によって所有者が異なる為、内装や設備が変更されている場合がございます。
※ペットの飼育やSOHO利用に関しては、建物自体が許可を出していても、所有者の意向により禁止とされている場合もございますのでご注意ください。
中川(女性)
2024/06/25
池袋駅からバスで3駅乗車し、物件へと向かいました。
最寄りのバス停からは4分ほど歩いて到着しますので、池袋駅へのアクセスの良さも確保されております。
駅からは遠い物件ですが、本物件のアネックス棟にはスーパーやジムもあり
周辺にもドラッグストアや業務スーパーもありますので、利便性は高い立地です。
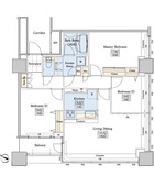
今回はフルリノベーションされている2SLDKをご案内いたしました。
フローリングや水回りの設備が最新のものに変わっており、食洗機もある広々としたカウンターキッチンは
とても解放感がありました。
角部屋かつ高層階のお部屋で、バルコニーは狭かったのですが、fix窓からの景色はとても良かったです。
南西向きで、一日中明るいお部屋でお過ごしいただける印象でした。
(30代/男性/1LDK)
2023/03/27
ペット可など条件を満たしており、以前住んでいた場所と近かったため。
(20代/男性/1LDK)
2020/11/14
想像していた通りの物件です。自分の提示条件にとても合っていました。共有部や設備がしっかりとしていて生活がしやすいと思います。室内も綺麗に管理され設備にも満足しています。
※これらの口コミは、ご成約者様や営業スタッフによる主観的な意見や感想です。建物の価値を客観的に評価するものではありません。あくまでも一つの参考としてご活用ください。
空室確認・内覧予約・空き待ちをご希望のお客様は、こちらよりお気軽にお問い合わせください。
03-6890-7755