

仲介手数料無料+礼金0キャンペーン中です。
※キャンペーン内容は売買、賃貸、お部屋により異なります。
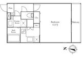
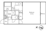
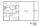
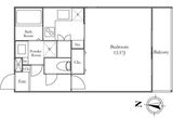
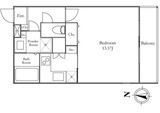
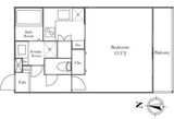
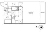
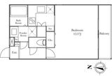
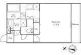
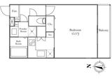
エレベーター,オートロック,宅配ボックス,TVドアホン,敷地内ゴミ置き場,防犯カメラ,BS,CS,CATV,インターネット,閑静な住宅街
※掲載情報が現況と異なる場合は、現況を優先させていただきます。
※キャンペーン情報は予告なく変更・終了する場合がございます。詳細はお問い合わせください。
※部屋により敷金・礼金・キャンペーンの内容が異なる場合がございますので、詳しい情報は各部屋ページにてご確認ください。
※分譲賃貸は部屋によって所有者が異なる為、内装や設備が変更されている場合がございます。
※ペットの飼育やSOHO利用に関しては、建物自体が許可を出していても、所有者の意向により禁止とされている場合もございますのでご注意ください。
(30代/男性/1K)
2021/06/19
想像以上に魅力的な間取りかつ内装で周辺環境も良かった。共用部はセキュリティもしっかりしており、綺麗に管理されていた。立地・間取り・グレードなどの物件のバランスの良さが気に入り、担当スタッフの方にも常に誠実にご対応いただけた。
(40代/男性/1K)
2019/12/07
広さが十分にあり、日当たりが良かったです。
建物全体的にきれいで、大変満足です。
萩野(男性)
2017/07/23
内覧会に行って参りました。
東京メトロ丸ノ内線「中野富士見町駅」を出て左に進み、神田川を渡り富士見橋西の信号を右に直進、3つ目の交差点を左に曲がると物件は有りました。外観、内廊下、居室の至る所がコンクリート打ちっぱなしになっており、エリアには珍しい本格的なデザイナーズマンションです。個性的なルームアレンジをお考えのお客様には是非一度ご覧いただきたい物件です。
※これらの口コミは、ご成約者様や営業スタッフによる主観的な意見や感想です。建物の価値を客観的に評価するものではありません。あくまでも一つの参考としてご活用ください。
空室確認・内覧予約・空き待ちをご希望のお客様は、こちらよりお気軽にお問い合わせください。
03-6890-7755