

仲介手数料無料+礼金0キャンペーン中です。
※キャンペーン内容は売買、賃貸、お部屋により異なります。
備考:
【駐車場】機械式駐車場84台 35,000円/月額
全長:5,300mm 全幅:2,050mm 全高:1,550mm〜2,000mm 重量:2,300kg
【バイク置き場】33台/小型2100円~大型4200円/月額
【駐輪場】448台 無料
【トランクルーム】126区画/月額2100円~4200円
【コンシェルジュサービス】
来訪者の受付・案内
宅配便の一時預かりサービス
タクシー手配サービス
クリ―ニング取次サービス
各業者紹介サービス
メッセージ預かり ※駐輪場・バイク置き場・駐車場の空き状況等詳細につきましてはお問い合わせください。
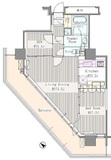
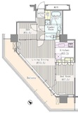
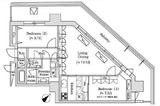
エレベーター,オートロック,宅配ボックス,TVドアホン,トランクルーム,駐車場,バイク置き場,駐輪場,ラウンジ,コンシェルジュ,敷地内ゴミ置き場,各階ゴミ置き場,内廊下,24時間管理,防犯カメラ,BS,CS,CATV,インターネット
※掲載情報が現況と異なる場合は、現況を優先させていただきます。
※キャンペーン情報は予告なく変更・終了する場合がございます。詳細はお問い合わせください。
※部屋により敷金・礼金・キャンペーンの内容が異なる場合がございますので、詳しい情報は各部屋ページにてご確認ください。
※分譲賃貸は部屋によって所有者が異なる為、内装や設備が変更されている場合がございます。
※ペットの飼育やSOHO利用に関しては、建物自体が許可を出していても、所有者の意向により禁止とされている場合もございますのでご注意ください。
(30代/男性/1DK)
2020/08/29
少し古いかなという印象ですが、収納が多くキッチンが広いので気に入っています。
中原(男性)
2015/07/26
東中野駅に直結するタワーマンション。その魅力は何と言っても駅徒歩1分。JRと大江戸線の2路線利用できるアクセス環境も通勤・通学に便利です。1階と2回は商業施設となり、スーパー・ドラッグストア・スポーツジムが入るので生活至便。コンシェルジュサービスもあり、共用設備も充実していますのでグレードを重視してお探しの方にお勧めです。
※これらの口コミは、ご成約者様や営業スタッフによる主観的な意見や感想です。建物の価値を客観的に評価するものではありません。あくまでも一つの参考としてご活用ください。
空室確認・内覧予約・空き待ちをご希望のお客様は、こちらよりお気軽にお問い合わせください。
03-6890-7755