

備考:
【駐車場】27,000円・33,000円/月額
【バイク置き場】5,500円/月額
【駐輪場】無料 ※駐輪場・バイク置き場・駐車場の空き状況等詳細につきましてはお問い合わせください。
エレベーター,オートロック,宅配ボックス,TVドアホン,駐車場,バイク置き場,駐輪場,敷地内ゴミ置き場,内廊下,防犯カメラ,BS,CS,CATV,インターネット
※掲載情報が現況と異なる場合は、現況を優先させていただきます。
※キャンペーン情報は予告なく変更・終了する場合がございます。詳細はお問い合わせください。
※部屋により敷金・礼金・キャンペーンの内容が異なる場合がございますので、詳しい情報は各部屋ページにてご確認ください。
※分譲賃貸は部屋によって所有者が異なる為、内装や設備が変更されている場合がございます。
※ペットの飼育やSOHO利用に関しては、建物自体が許可を出していても、所有者の意向により禁止とされている場合もございますのでご注意ください。
岡崎(男性)
2024/12/23
東京メトロ丸ノ内線「中野富士見町駅」出入り口より徒歩6分。
信号を渡らずに到着できるのでお子様がいても、安全に物件まで向かえます。
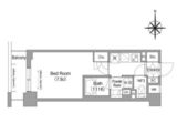
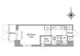
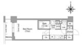
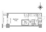
今回は701号室を訪問しました。
ビルトイン食洗機のあるシステムキッチンや床暖房を完備しており、リビング・ダイニング・キッチンと充実した空間となっていました。
またこちらのお部屋の特徴としては、ルーフバルコニーがついていることです。
広々としたルーフバルコニーの周りには遮るものがなく、気分転換に外を眺めるには最適だと感じました。
ゆっくりと時の流れを感じられるので、住空間を大切にされている方にはとてもオススメでございます。
※これらの口コミは、ご成約者様や営業スタッフによる主観的な意見や感想です。建物の価値を客観的に評価するものではありません。あくまでも一つの参考としてご活用ください。
空室確認・内覧予約・空き待ちをご希望のお客様は、こちらよりお気軽にお問い合わせください。
03-6890-7755