

仲介手数料OFFキャンペーン中です。
※キャンペーン内容は売買、賃貸、お部屋により異なります。
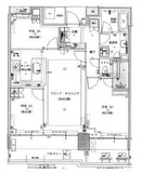
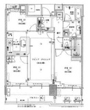
備考:
【駐車場】328台(他に管理用2台、来客用4台)
【バイク置き場】55台
【駐輪場】1,100台
【共用施設】
《ベイズ》
1階
・キッズガーデン
・ベイサイドラウンジ
31階
・ゲストルーム(プレミアムスイート30階/トップスイート31階)
・パーティスペース
・ライブラリー
・ラウンジ&バー
最上階
・スカイデッキ
《スカイズ》
1階
・フィットネス&スパ
・スタディールーム
・ガーデンラウンジ/コモンラウンジ
・キッズルーム
・カルチャールーム
・パーティルーム
・コミュニティハウス
43階
・ゲストルーム(ノルディック/ジャパニーズ/オリエンタル/ミラン スイート)
44階
・ビューラウンジ(サンライズ/サンセット)
最上階
・スカイラウンジ
・天体観測ドーム
【こちらもご覧下さい(敷地内別棟)】
スカイズタワー&ガーデン ※駐輪場・バイク置き場・駐車場の空き状況等詳細につきましてはお問い合わせください。
エレベーター,オートロック,宅配ボックス,TVドアホン,トランクルーム,駐車場,大型駐車場,バイク置き場,駐輪場,ラウンジ,キッズルーム,コンシェルジュ,フィットネスジム,プール,ゲストルーム,パーティールーム,スパ,敷地内ゴミ置き場,各階ゴミ置き場,内廊下,オール電化,24時間管理,防犯カメラ,BS,CS,CATV,インターネット,免震・制震
※掲載情報が現況と異なる場合は、現況を優先させていただきます。
※キャンペーン情報は予告なく変更・終了する場合がございます。詳細はお問い合わせください。
※部屋により敷金・礼金・キャンペーンの内容が異なる場合がございますので、詳しい情報は各部屋ページにてご確認ください。
※分譲賃貸は部屋によって所有者が異なる為、内装や設備が変更されている場合がございます。
※ペットの飼育やSOHO利用に関しては、建物自体が許可を出していても、所有者の意向により禁止とされている場合もございますのでご注意ください。
萩野(男性)
2016/11/12
豊洲駅より徒歩11分の立地ですが、駅と物件の近くに自転車シェアリングのステーションがあるため、距離は全く気になりませんでした。最上階スカイデッキからは東京タワー、スカイツリー、レインボーブリッジが見えるという贅沢な眺望が広がっていました。同一プロジェクトにより竣工された「スカイズタワー&ガーデン」内のフィットネスやプール、天体観測ドーム等の共用施設が相互利用出来る事も嬉しいポイントでした。
※これらの口コミは、ご成約者様や営業スタッフによる主観的な意見や感想です。建物の価値を客観的に評価するものではありません。あくまでも一つの参考としてご活用ください。
空室確認・内覧予約・空き待ちをご希望のお客様は、こちらよりお気軽にお問い合わせください。
03-6890-7755