

仲介手数料無料+礼金0キャンペーン中です。
※キャンペーン内容は売買、賃貸、お部屋により異なります。
備考:
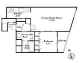
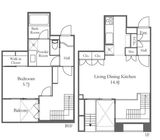
【駐車場】機械式52,500円~/月額
全長5,300mm・全幅2,000mm・全高1,550~2,100mm・重量2,300kg ※駐輪場・バイク置き場・駐車場の空き状況等詳細につきましてはお問い合わせください。
エレベーター,オートロック,宅配ボックス,TVドアホン,トランクルーム,駐車場,大型駐車場,駐輪場,敷地内ゴミ置き場,内廊下,24時間管理,防犯カメラ,BS,CS,CATV,インターネット,閑静な住宅街
※掲載情報が現況と異なる場合は、現況を優先させていただきます。
※キャンペーン情報は予告なく変更・終了する場合がございます。詳細はお問い合わせください。
※部屋により敷金・礼金・キャンペーンの内容が異なる場合がございますので、詳しい情報は各部屋ページにてご確認ください。
※分譲賃貸は部屋によって所有者が異なる為、内装や設備が変更されている場合がございます。
※ペットの飼育やSOHO利用に関しては、建物自体が許可を出していても、所有者の意向により禁止とされている場合もございますのでご注意ください。
(30代/女性/1LDK)
2024/07/22
間取りが使いやすそう。特にキッチンとリビングが分かれているところが気に入っています。リノベーションして間もないので、水回りがとてもきれい。食洗機がついているところも良いです。
須賀(男性)
2020/12/15
乃木坂駅1番出口を赤坂方面に3〜4分ほど歩いたところにございます。
建物は通り沿いに面しておりますが、お部屋の大半が通りに対して離れるように造られています。内覧したお部屋は通り沿いに面した部屋でしたが、その部屋でも車の音はあまり気になりませんでしたので、他の部屋についても問題ないと思います。
エントランスからお部屋までの共有部分は管理人さんによって非常に清潔に保たれており好印象です。六本木ミッドタウンも徒歩10分以内にアクセスできる好立地物件です。
(20代/女性/1LDK)
2020/11/21
WEBページで見るよりも明るい印象を受けた上に、周辺の環境を見たことによって借りたい気持ちが増しました。
設備や内装も広く、諸々の条件が一致したため、成約にいたしました。
LINEでのやり取りが早く、スムーズな確認が行えて不安なく成約まですすめることができました。
こちらからのお願いにも快く応じて頂き、ありがたかったです。
※これらの口コミは、ご成約者様や営業スタッフによる主観的な意見や感想です。建物の価値を客観的に評価するものではありません。あくまでも一つの参考としてご活用ください。
空室確認・内覧予約・空き待ちをご希望のお客様は、こちらよりお気軽にお問い合わせください。
03-6890-7755