

仲介手数料無料キャンペーン中です。
※キャンペーン内容は売買、賃貸、お部屋により異なります。
エレベーター,オートロック,宅配ボックス,TVドアホン,駐輪場,敷地内ゴミ置き場,内廊下,防犯カメラ,BS,CS,CATV,インターネット,閑静な住宅街
※掲載情報が現況と異なる場合は、現況を優先させていただきます。
※キャンペーン情報は予告なく変更・終了する場合がございます。詳細はお問い合わせください。
※部屋により敷金・礼金・キャンペーンの内容が異なる場合がございますので、詳しい情報は各部屋ページにてご確認ください。
※分譲賃貸は部屋によって所有者が異なる為、内装や設備が変更されている場合がございます。
※ペットの飼育やSOHO利用に関しては、建物自体が許可を出していても、所有者の意向により禁止とされている場合もございますのでご注意ください。
(50代/1K)
2017/02/27
想像よりも広く明るいところが良かったです。立地の良さとデザイン性の高さに惹かれました。
(30代/女性/1K)
2017/02/27
綺麗で暮らしやすそうなところが気に入りました。設備も整っていて新生活が楽しみです。担当の方の親切な対応に感謝しています。
大久保(男性)
2017/02/08
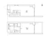
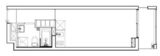
先日、コートモデリア赤坂895の内覧会に行って参りました。
以前こちらには地下まであるオフィスビルが建っておりました。
今回の建設にあたり地下部分を有効に使っており一階の吹き抜け部分で約6メートルの天井高になっております。
地下にあたる部分は壁を白く塗りプロジェクターを使って映画なども楽しめるような設計になっております。
間取りタイプによって床や壁の材質が変わっており日々の生活を豊かに彩ってくれます。
※これらの口コミは、ご成約者様や営業スタッフによる主観的な意見や感想です。建物の価値を客観的に評価するものではありません。あくまでも一つの参考としてご活用ください。
空室確認・内覧予約・空き待ちをご希望のお客様は、こちらよりお気軽にお問い合わせください。
03-6890-7755