

備考:
【駐車場】機械式 26台 50,000円~63,000円/月額(税別)
【バイク置き場】2台 6,000円/月額(税別)
【ミニバイク置き場】2台 3,000円/月額(税別)
【駐輪場】88台 400円~800円/月額(税別) ※駐輪場・バイク置き場・駐車場の空き状況等詳細につきましてはお問い合わせください。
エレベーター,オートロック,宅配ボックス,TVドアホン,駐車場,バイク置き場,駐輪場,ラウンジ,コンシェルジュ,敷地内ゴミ置き場,防犯カメラ,BS,CS,CATV,インターネット,閑静な住宅街
※掲載情報が現況と異なる場合は、現況を優先させていただきます。
※キャンペーン情報は予告なく変更・終了する場合がございます。詳細はお問い合わせください。
※部屋により敷金・礼金・キャンペーンの内容が異なる場合がございますので、詳しい情報は各部屋ページにてご確認ください。
※分譲賃貸は部屋によって所有者が異なる為、内装や設備が変更されている場合がございます。
※ペットの飼育やSOHO利用に関しては、建物自体が許可を出していても、所有者の意向により禁止とされている場合もございますのでご注意ください。
佐藤(男性)
2020/05/22
乃木坂駅から地上に上がると、徒歩1分もかからない場所に建っていました。徒歩5分の場所には「東京ミッドタウン」があるため、食品の買い物に不便することはありません。
1フロア3住戸がメインなので、住民と顔を合わせること少なく、朝の通勤時のエレベーターもあまり混まないと思います。
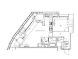
ご案内した部屋はリビングが三角形になっていて、一風変わった間取りで大きめの家具をお持ちの方はレイアウトに少し困りそうでしたが、北西側の窓がとても大きく、青山霊園から明治神宮外苑までを一望できるビューがとても魅力的でした。
※これらの口コミは、ご成約者様や営業スタッフによる主観的な意見や感想です。建物の価値を客観的に評価するものではありません。あくまでも一つの参考としてご活用ください。
空室確認・内覧予約・空き待ちをご希望のお客様は、こちらよりお気軽にお問い合わせください。
03-6890-7755
