

仲介手数料無料キャンペーン中です。
※キャンペーン内容は売買、賃貸、お部屋により異なります。
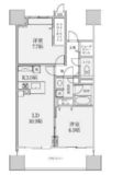
備考:
【駐車場】66台自走式2層3段 20,000円~25,000円/月額(税抜)
【バイク置場】11台 1,000円/月額(税抜)
【駐輪場】186台2段式
【共用施設】
・コンシェルジュサービス
・ラウンジ
・トランクルーム ※駐輪場・バイク置き場・駐車場の空き状況等詳細につきましてはお問い合わせください。
エレベーター,オートロック,宅配ボックス,TVドアホン,トランクルーム,ペット足洗い場,駐車場,大型駐車場,バイク置き場,駐輪場,ラウンジ,コンシェルジュ,敷地内ゴミ置き場,内廊下,防犯カメラ,BS,CS,CATV,インターネット,バリアフリー,閑静な住宅街
※掲載情報が現況と異なる場合は、現況を優先させていただきます。
※キャンペーン情報は予告なく変更・終了する場合がございます。詳細はお問い合わせください。
※部屋により敷金・礼金・キャンペーンの内容が異なる場合がございますので、詳しい情報は各部屋ページにてご確認ください。
※分譲賃貸は部屋によって所有者が異なる為、内装や設備が変更されている場合がございます。
※ペットの飼育やSOHO利用に関しては、建物自体が許可を出していても、所有者の意向により禁止とされている場合もございますのでご注意ください。
(50代/女性/3LDK)
2024/02/20
近隣に住んでいて住みやすいエリアでしたのでその中でいい物件を見つけられました。
お部屋を広くしたいための引っ越しで大きめのお部屋で満足しています。
リビングの日当たりが良さそうな点も良かったです。
(20代/男性/1R)
2023/10/01
共用部がきれいで清潔感がある。
お部屋全体のカラーと広さも開放感があり気に入った。
(50代/女性/2LDK)
2021/09/12
部屋が広くて窓も大きい為、部屋が明るいです。
ペット飼育可能なところ、据付の家具があるところが気に入りました。
シーサーが好きなのでたくさんあっていいですね。
親切に対応していただき、またレスポンスも早く助かりました。
ありがとうございました。
※これらの口コミは、ご成約者様や営業スタッフによる主観的な意見や感想です。建物の価値を客観的に評価するものではありません。あくまでも一つの参考としてご活用ください。
空室確認・内覧予約・空き待ちをご希望のお客様は、こちらよりお気軽にお問い合わせください。
03-6890-7755