

仲介手数料無料キャンペーン中です。
※キャンペーン内容は売買、賃貸、お部屋により異なります。
エレベーター,オートロック,宅配ボックス,TVドアホン,駐輪場,敷地内ゴミ置き場,24時間管理,防犯カメラ,BS,CATV,インターネット
※掲載情報が現況と異なる場合は、現況を優先させていただきます。
※キャンペーン情報は予告なく変更・終了する場合がございます。詳細はお問い合わせください。
※部屋により敷金・礼金・キャンペーンの内容が異なる場合がございますので、詳しい情報は各部屋ページにてご確認ください。
※分譲賃貸は部屋によって所有者が異なる為、内装や設備が変更されている場合がございます。
※ペットの飼育やSOHO利用に関しては、建物自体が許可を出していても、所有者の意向により禁止とされている場合もございますのでご注意ください。
弓田(女性)
2022/06/06
複数路線利用可能な当物件ですが、銀座線虎ノ門駅から向かいました。
外堀通りから1本中に入った立地のため、都心部でありながら都会の喧騒を忘れるほど落ち着いた場所にございます。
周辺に複数の大通りがあることからバスの利用がしやすく、少し歩けば飲食店なども多くあるため周辺環境は非常に充実しています。
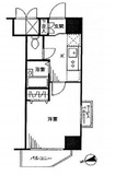
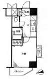
13階建てと存在感のある当物件ですが、今回は5階の1Kのお部屋をご案内しました。
北西向きのお部屋ですが、南側にも窓のある二面採光のため、暗い印象は一切なく想像よりも広く明るく感じました。
都会で充実した暮らしを望まれる方にはぴったりな物件です。
※これらの口コミは、ご成約者様や営業スタッフによる主観的な意見や感想です。建物の価値を客観的に評価するものではありません。あくまでも一つの参考としてご活用ください。
空室確認・内覧予約・空き待ちをご希望のお客様は、こちらよりお気軽にお問い合わせください。
03-6890-7755
