ブルックサイドレジデンス木場 801

  • 仲介手数料無料
  • 礼金0
  • フリーレント
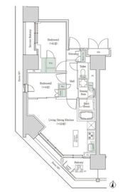
  • ブルックサイドレジデンス木場 801 間取り図
  • ブルックサイドレジデンス木場 物件写真 建物写真1
  • ブルックサイドレジデンス木場 物件写真 建物写真2
建物詳細ページを見る

物件概要

物件名
ブルックサイドレジデンス木場
賃料
293,000円
共益費/
管理費
30,000円
敷金
1ヶ月
礼金
0ヶ月
仲介
手数料
0ヶ月
フリー
レント
1ヶ月
間取り
2LDK+WIC
(LDK12.8帖,洋室6.3帖,洋室4帖)
専有面積
54.31m2
所在階/
総階数
8階/地上18階 
入居
可能時期
即入居
情報登録日
2026年1月27日
情報更新日
2026年4月26日
所在地
東京都江東区塩浜2-8-1地図
交通
東京メトロ東西線木場駅」徒歩9分



問合番号
17732-801
物件特徴
ペット可
更新料
0ヶ月
築年月
2026年3月
総戸数
563戸
建物構造
RC造
保険
要加入
保証会社
利用必須
方角
契約形態
定期借家契約 2年間
ペット
可 
SOHO・
事務所
不可 
取引態様
媒介

備考:

more

建物設備

エレベーター,オートロック,宅配ボックス,TVドアホン,駐車場,バイク置き場,駐輪場,ラウンジ,敷地内ゴミ置き場,防犯カメラ,BS,CS,CATV,インターネット

部屋設備

独立洗面台,追い焚き,ウォシュレット,浴室乾燥機,システムキッチン,ガスコンロ,エアコン,ウォークインクローゼット,ダブルロックキー,フローリング,角部屋,南向き

募集中住戸一覧

135室表示

その他132件を表示

チェックした部屋について

問い合わせる 検討中リストに追加

※掲載情報が現況と異なる場合は、現況を優先させていただきます。
※キャンペーン情報は予告なく変更・終了する場合がございます。詳細はお問い合わせください。
※部屋により敷金・礼金・キャンペーンの内容が異なる場合がございますので、詳しい情報は各部屋ページにてご確認ください。
※分譲賃貸は部屋によって所有者が異なる為、内装や設備が変更されている場合がございます。
※ペットの飼育やSOHO利用に関しては、建物自体が許可を出していても、所有者の意向により禁止とされている場合もございますのでご注意ください。

おすすめ物件情報

最近見た物件

ブルックサイドレジデンス木場801について

問い合わせる 電話する 検討中リスト
に追加
閉じる

検討中リストに追加しました。

ページ上部の検討中リストより、追加した部屋情報が確認できます。

ページ上部の検討中リストより、追加した部屋情報が確認できます。