

フリーレント+仲介手数料無料+礼金0キャンペーン中です。
※キャンペーン内容は売買、賃貸、お部屋により異なります。
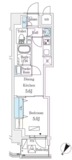
エレベーター,オートロック,宅配ボックス,TVドアホン,駐輪場,敷地内ゴミ置き場,防犯カメラ,BS,CS,CATV,インターネット
※掲載情報が現況と異なる場合は、現況を優先させていただきます。
※キャンペーン情報は予告なく変更・終了する場合がございます。詳細はお問い合わせください。
※部屋により敷金・礼金・キャンペーンの内容が異なる場合がございますので、詳しい情報は各部屋ページにてご確認ください。
※分譲賃貸は部屋によって所有者が異なる為、内装や設備が変更されている場合がございます。
※ペットの飼育やSOHO利用に関しては、建物自体が許可を出していても、所有者の意向により禁止とされている場合もございますのでご注意ください。
下村
2025/09/14
東京メトロ南北線「駒込」駅から徒歩2分、JR山手線「駒込」駅からも徒歩4分と、抜群のアクセス環境。東京・新宿・品川方面へもスムーズに移動できます。
西側には歴史的名勝・六義園(特別名勝)があり、徒歩4分でアクセス可能。春の桜や秋の紅葉、ライトアップなど、四季折々の自然を日常的に楽しめます。
今回は案内で訪れましたが、物件は静かな住宅街にあり、周辺には巣鴨や田端など下町情緒あふれる散策コースも徒歩・自転車圏内に充実。平日の通勤はもちろん、休日のリフレッシュにも最適な環境だと感じました。
建物・住戸ともに最新設備が整い、ダブルオートロックや防犯カメラ、TVモニター付きインターホン、宅配ボックスなどセキュリティ面も安心。さらに、周辺には飲食店やスーパーが多く、生活利便性も高い印象です。
実際にお部屋を拝見したところ、収納が多く、日常生活に便利さを感じました。
※これらの口コミは、ご成約者様や営業スタッフによる主観的な意見や感想です。建物の価値を客観的に評価するものではありません。あくまでも一つの参考としてご活用ください。
空室確認・内覧予約・空き待ちをご希望のお客様は、こちらよりお気軽にお問い合わせください。
03-6890-7755