

仲介手数料無料+礼金0キャンペーン中です。
※キャンペーン内容は売買、賃貸、お部屋により異なります。
備考:
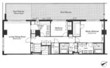
【駐車場】
機械式14台 50,000円(税別)/月額
全長5,300mm・全高2,000mm・全幅1,950mm・重量2,300kg
機械式36台 45,000円(税別)/月額
全長5,300mm・全高1,550mm・全幅1,950mm・全重2,300kg
平置き式20台 60,000-65,000円(税別)/月額
【駐輪場】106台 1台につき登録料2,000円(税別)
【バイク置場】7台 7,000円税別/月額
【トランクルーム】18区画
【共用施設】
・コンシェルジュサービス
・フィットネス
・ラウンジ
・庭
【ペット】犬または猫2匹まで。体長50cmまで、合計体重10kgまで
【設計】株式会社竹中工務店
【施工】株式会社竹中工務店・日本建設株式会社 ※駐輪場・バイク置き場・駐車場の空き状況等詳細につきましてはお問い合わせください。
エレベーター,オートロック,TVドアホン,トランクルーム,ペット足洗い場,駐車場,大型駐車場,バイク置き場,駐輪場,ラウンジ,コンシェルジュ,フィットネスジム,敷地内ゴミ置き場,内廊下,24時間管理,防犯カメラ,BS,CS,CATV,インターネット,閑静な住宅街,楽器可,免震・制震
※掲載情報が現況と異なる場合は、現況を優先させていただきます。
※キャンペーン情報は予告なく変更・終了する場合がございます。詳細はお問い合わせください。
※部屋により敷金・礼金・キャンペーンの内容が異なる場合がございますので、詳しい情報は各部屋ページにてご確認ください。
※分譲賃貸は部屋によって所有者が異なる為、内装や設備が変更されている場合がございます。
※ペットの飼育やSOHO利用に関しては、建物自体が許可を出していても、所有者の意向により禁止とされている場合もございますのでご注意ください。
石川(男性)
2017/05/22
六本木と赤坂エリアの中間に位置しており赤坂も六本木も徒歩圏内でとても便利な立地です。
駅からの道中にはミッドタウンや檜町公園、様々な商業店舗がありましたが、一歩路地に入ると大変閑静で高級感漂う住宅地となっておりました。
建物外観は存在感のあるヴィンテージマンションの様な重厚感と落ち着きのあるファザードでした。
傾斜部分に建っていますので西側にあるメインエントランスを入ると階数的には3階部分となっておりました。
東側がリビング部分の開口部となっているのですが低層階でも全く眺望に圧迫感がなく、東側に建っている建物の5階部分程の高さとなっております。
共用部には英語対応可能なコンシェルジュもおり日常生活の中で居住者の方もかなり頼りにしているように見えました。
また地下駐車場は機械式がメインですが、ゆったりとしたサイズ感で外国車も問題無いようです。
※これらの口コミは、ご成約者様や営業スタッフによる主観的な意見や感想です。建物の価値を客観的に評価するものではありません。あくまでも一つの参考としてご活用ください。
空室確認・内覧予約・空き待ちをご希望のお客様は、こちらよりお気軽にお問い合わせください。
03-6890-7755