

仲介手数料無料+礼金0キャンペーン中です。
※キャンペーン内容は売買、賃貸、お部屋により異なります。
備考:
【駐車場】165台 40,000円~/月額
【バイク置き場】有
【駐輪場】有
【カーシェアリング】アウディ 24時間会員制
【コンシェルジュサービス】24時間
コンシェルジュサービス
レセプションサービス
インフォメーション
宅配便の一時預かりサービス
タクシー手配サービス
クリ―ニング取次サービス
各業者紹介サービス
メッセージ預かり
【共用施設】
・ラウンジ
・「泉ガーデン」敷地内のフィットネスジムを無料利用可
※駐輪場・バイク置き場・駐車場の空き状況等詳細につきましてはお問い合わせください。
エレベーター,オートロック,宅配ボックス,TVドアホン,駐車場,大型駐車場,バイク置き場,駐輪場,ラウンジ,コンシェルジュ,フィットネスジム,プール,敷地内ゴミ置き場,各階ゴミ置き場,内廊下,24時間管理,防犯カメラ,BS,CS,CATV,インターネット,免震・制震
※掲載情報が現況と異なる場合は、現況を優先させていただきます。
※キャンペーン情報は予告なく変更・終了する場合がございます。詳細はお問い合わせください。
※部屋により敷金・礼金・キャンペーンの内容が異なる場合がございますので、詳しい情報は各部屋ページにてご確認ください。
※分譲賃貸は部屋によって所有者が異なる為、内装や設備が変更されている場合がございます。
※ペットの飼育やSOHO利用に関しては、建物自体が許可を出していても、所有者の意向により禁止とされている場合もございますのでご注意ください。
石川(男性)
2016/09/11
六本木一丁目駅から直結しており、駅から物件に向かう途中にはフィットネスジム「エスフォルタ六本木」があります。
泉ガーデンレジデンスにお住いの方は入居者様特典として入会金や月額費用等全て無料の特典がありとても良いサービスです。
エントランスは広々とした車寄せが有り、コンシェルジュ対応にてタクシーの依頼も受付しておりますので便利です。
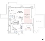
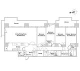
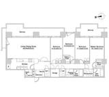
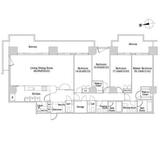
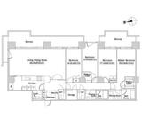
またお部屋はカーペット仕様とフローリング仕様の2パターンがございます。
1階のロビーの奥には入居者様専用の商談スペースもございますので、フリーでお仕事をされている方には大変重宝されているようでした。
※これらの口コミは、ご成約者様や営業スタッフによる主観的な意見や感想です。建物の価値を客観的に評価するものではありません。あくまでも一つの参考としてご活用ください。
空室確認・内覧予約・空き待ちをご希望のお客様は、こちらよりお気軽にお問い合わせください。
03-6890-7755