

備考:
【駐車場】機械式:47,000円/月額
全長5,300mm・全幅1,950mm・全高2,050mm・重量2,000kg
【バイク置場】3,000円~8,000円/月額
【駐輪場】400円~800円/月額
【共用施設】
・コンシェルジュサービス
・スカイラウンジ(27階)
・屋上庭園 ※駐輪場・バイク置き場・駐車場の空き状況等詳細につきましてはお問い合わせください。
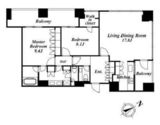
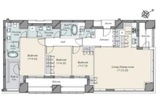
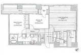
エレベーター,オートロック,宅配ボックス,TVドアホン,トランクルーム,駐車場,大型駐車場,バイク置き場,駐輪場,ラウンジ,コンシェルジュ,パーティールーム,敷地内ゴミ置き場,各階ゴミ置き場,内廊下,防犯カメラ,BS,CS,CATV,インターネット,閑静な住宅街,楽器可,免震・制震
※掲載情報が現況と異なる場合は、現況を優先させていただきます。
※キャンペーン情報は予告なく変更・終了する場合がございます。詳細はお問い合わせください。
※部屋により敷金・礼金・キャンペーンの内容が異なる場合がございますので、詳しい情報は各部屋ページにてご確認ください。
※分譲賃貸は部屋によって所有者が異なる為、内装や設備が変更されている場合がございます。
※ペットの飼育やSOHO利用に関しては、建物自体が許可を出していても、所有者の意向により禁止とされている場合もございますのでご注意ください。
石川(男性)
2017/03/24
春には桜が満開になる閑静な並木道を歩きますと、道中にスーパーやおしゃれなオープンカフェが立ち並ぶ治安の良い閑静な住環境が建物周辺となっております。
物件はタワーマンションでありながら大変落ち着いた雰囲気、エントランスも大型では無いですが高級感を十分漂わせておりました。
マンション北側に通りを挟みお寺がありますので、北側の眺望としてはお墓が見えますがそれ以外の方位は低層階でも圧迫感がなく緑地を望む事ができました。
※これらの口コミは、ご成約者様や営業スタッフによる主観的な意見や感想です。建物の価値を客観的に評価するものではありません。あくまでも一つの参考としてご活用ください。
空室確認・内覧予約・空き待ちをご希望のお客様は、こちらよりお気軽にお問い合わせください。
03-6890-7755
