

仲介手数料無料+礼金0キャンペーン中です。
※キャンペーン内容は売買、賃貸、お部屋により異なります。
備考:
【駐車場】1台 44,000円/月額
【バイク置き場】5台 6,600円/月額
【駐輪場】6,600円/月額※2年間分一括払い ※駐輪場・バイク置き場・駐車場の空き状況等詳細につきましてはお問い合わせください。
エレベーター,オートロック,宅配ボックス,TVドアホン,駐車場,バイク置き場,駐輪場,敷地内ゴミ置き場,内廊下,防犯カメラ,BS,CS,CATV,インターネット
※掲載情報が現況と異なる場合は、現況を優先させていただきます。
※キャンペーン情報は予告なく変更・終了する場合がございます。詳細はお問い合わせください。
※部屋により敷金・礼金・キャンペーンの内容が異なる場合がございますので、詳しい情報は各部屋ページにてご確認ください。
※分譲賃貸は部屋によって所有者が異なる為、内装や設備が変更されている場合がございます。
※ペットの飼育やSOHO利用に関しては、建物自体が許可を出していても、所有者の意向により禁止とされている場合もございますのでご注意ください。
深見(女性)
2022/08/26
当物件は「浅草駅」A2a出口より徒歩8分の場所にございました。道中にはスカイツリーが望め、のどかな町並みには下町らしさが感じられます。太い通りに面してはおりますが、交通量はさほど多くない様子でした。
物件内に入るとホテルライクな内廊下に、大きな玄関扉が出迎えてくれます。各住戸の室内も扉が大きめで、廊下などの動線にまで贅沢な空間使いが窺えます。
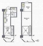
間取りはバーチカルブラインドを駆使したものが豊富で、1DKのような使い方ができる1Rから、複数タイプの1LDKまで揃っております。特に、玄関・水回り/書斎・納戸/DK/洋室の4フロアに分かれたユニークな間取りは、採光部も収納も多くひときわ印象的でした。
内装は、グレー・ブラックを基調としたダークトーンのお部屋と、ホワイト・ライトブラウンを基調としたナチュラルなお部屋の2パターンです。どの間取りも共通してキッチンと洗面台が広く、居室以外の生活空間にまでこだわりを感じます。中でも対面キッチンの1LDKは、完全独立シンクと背面のコンロスペースに分かれており、テーブルとしても使える広々とした作業台まで備わっています。収納の豊富さは言うまでも無く、マントル型レンジフードなど重厚感のある設備が圧巻でした。天井にはダウンライトが多用され、柔らかく上品なライティングです。
他に類を見ない意匠で、お料理好きな方や居室以外にもこだわりを持つ方におすすめしたい物件です。
※これらの口コミは、ご成約者様や営業スタッフによる主観的な意見や感想です。建物の価値を客観的に評価するものではありません。あくまでも一つの参考としてご活用ください。
空室確認・内覧予約・空き待ちをご希望のお客様は、こちらよりお気軽にお問い合わせください。
03-6890-7755