

備考:
moreエレベーター,オートロック,宅配ボックス,TVドアホン,駐輪場,敷地内ゴミ置き場,防犯カメラ,BS,CS,インターネット
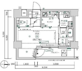
独立洗面台,ウォシュレット,浴室乾燥機,システムキッチン,ガスコンロ,エアコン,ウォークインクローゼット,ダブルロックキー,フローリング,角部屋,最上階
※掲載情報が現況と異なる場合は、現況を優先させていただきます。
※キャンペーン情報は予告なく変更・終了する場合がございます。詳細はお問い合わせください。
※部屋により敷金・礼金・キャンペーンの内容が異なる場合がございますので、詳しい情報は各部屋ページにてご確認ください。
※分譲賃貸は部屋によって所有者が異なる為、内装や設備が変更されている場合がございます。
※ペットの飼育やSOHO利用に関しては、建物自体が許可を出していても、所有者の意向により禁止とされている場合もございますのでご注意ください。