

仲介手数料無料+礼金0キャンペーン中です。
※キャンペーン内容は売買、賃貸、お部屋により異なります。
備考:
◆サウス 駅徒歩2分
鉄筋コンクリート造地上58階地下3階総戸数1665戸
【駐車場】491台[タワーパーキング491台(電気自動車等用充電対応8台、身体障がい者用駐車場1台含む)/月額使用料:32000円~40000円]※他に来客用7台・荷捌き用4台、カーシェア用2台、管理用1台
【バイク置き場】住宅用56台(月額使用料:2000円~4000円)
【駐輪場】住宅用2216台(月額使用料:200円~500円)※他にレンタサイクル50台
【共用施設】
1階
・キャナルカフェ
・キャナルフィットネス
・キャナルスタジオ
・ランドリー&プレイグラウンド
・キャナルラウンジ
・グリーンサイドコテージ
・ゴルフレンジ
2階
・キャナルサイドテラス
・ゲストルーム
・ブックコリドー
53階
・スカイデッキ
53-54階
・ルーフトップラウンジ
◆ミッド 駅直結・徒歩1分
鉄筋コンクリート造地上45階地下2階総戸数1329台[タワーパーキング324台(電気自動車等用充電対応6台含む)、平置き5台/月額使用料:34000円~42000円]※他に来客用5台、荷捌き用5台、カーシェア用2台、保育所用2台、商業オフィス用73台(電気自動車等用充電対応2台含む)512台 30,000円/月額(税別)
【バイク置き場】住宅用31台(月額使用料:2000円~4000円)※他に商業オフィス用6台
【駐輪場】住宅用1144台(月額使用料:200円~500円)※他にレンタサイクル60台、商業用114台
【共用施設】
・コンシェルジュサービス
3階
・コミュニティスペース
8階
・ウェルカミングホール
・ウェルカミングラウンジ
・ゴルフレンジ
・フィットネスルーム
・マルチパーパススタジオ
・パーソナルスタジオ
・キッズパーティールーム
・ラウンジパーティールーム
・シアタールーム
・スタディラウンジ
・ゲストルーム
・スパゲスト
※駐輪場・バイク置き場・駐車場の空き状況等詳細につきましてはお問い合わせください。
エレベーター,オートロック,宅配ボックス,TVドアホン,駐車場,大型駐車場,バイク置き場,駐輪場,ラウンジ,コンシェルジュ,フィットネスジム,ゲストルーム,パーティールーム,ゴルフレンジ,シアタールーム,敷地内ゴミ置き場,各階ゴミ置き場,内廊下,防犯カメラ,BS,CS,CATV,インターネット
※掲載情報が現況と異なる場合は、現況を優先させていただきます。
※キャンペーン情報は予告なく変更・終了する場合がございます。詳細はお問い合わせください。
※部屋により敷金・礼金・キャンペーンの内容が異なる場合がございますので、詳しい情報は各部屋ページにてご確認ください。
※分譲賃貸は部屋によって所有者が異なる為、内装や設備が変更されている場合がございます。
※ペットの飼育やSOHO利用に関しては、建物自体が許可を出していても、所有者の意向により禁止とされている場合もございますのでご注意ください。
深見(女性)
2023/12/27
都営大江戸線「勝どき駅」を利用可能な当物件は、ミッド徒歩1分/サウス徒歩2分の好立地です。ミッドは新設されたA5出口から直結しております。ミッドからサウスの間にはアーケードが設けられておりました、暴風雨でない限りサウスも天候に左右されることなく移動できます。2023年12月には地下にローソンが開業し、駅改札から地下エントランスの間でちょっとしたお買い物を済ませることも可能です。
外観は"帆"を意識した曲線的なデザインが特徴的です。2棟の間にはヤシの木と豊かな水辺が印象的なキャナルサイドテラスがあり、1Fの飲食店エリアにはパラソルが立ち並びリゾートさながらでした。リバービューのお席も多数あり、休日に水面を眺めながら一息つく贅沢な休日も楽しめそうです。また、1・2Fにはスーパーマーケットが入っており、日々の買い出しには事欠きません。
共用部はラウンジ、パーティールーム、ジム、ゴルフレンジ、スカイデッキ、バー、ブックコリドー、コワーキングスペース、ゲストルーム各棟5室ほか、様々な施設が揃っております。ミッド/サウスに関係なく相互利用できるのも嬉しいポイントです。
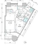
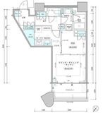
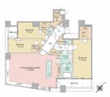
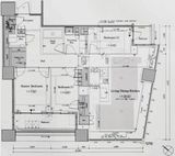
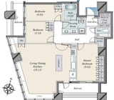
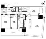
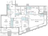
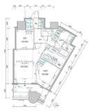
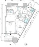
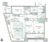
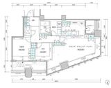
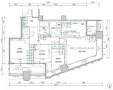
間取りは1Kから4LDKまで揃っており、単身の方からご家族様まで様々なニーズに応えられます。今回ご案内した6帖前後の1Kは低層階に集中しており、ミッドは8Fまでがテナント&共用施設にあたるため一定の眺望が確保されておりました。居室がコンパクトな間取りでも、分譲らしく玄関から水回りに至るまではゆとりのある設計です。キッチン横の作業スペースは広々としており、グリル付きでお料理好きの方にもおすすめできます。また、複数タイプある1Kのいずれも収納豊富でした。
利便性と快適な暮らしのどちらも取りたいという方に、ぜひご紹介したいと感じる物件でした。
※これらの口コミは、ご成約者様や営業スタッフによる主観的な意見や感想です。建物の価値を客観的に評価するものではありません。あくまでも一つの参考としてご活用ください。
空室確認・内覧予約・空き待ちをご希望のお客様は、こちらよりお気軽にお問い合わせください。
03-6890-7755