

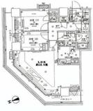
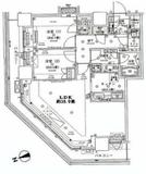
備考:
【駐車場】ノーマル30,000円/月額
全長5,300mm・全幅1,900mm・全高1,550mm・重量2,300kg
【駐車場】ハイルーフ30,000円/月額
全長5,300mm・全幅1,900mm・全高2,000mm・重量2,300kg
【バイク置き場】6,000/月額
【駐輪場】200~300円/月額
【公共施設】
・コンシェルジュサービス
・ゲストルーム【5階・38階】
・シアタールーム【19階】
・パーティールーム【19階】
・ライブラリールーム【19階】
・集会室、ミーティングルーム【5階・20階】
・1階~4階 商業施設【スーパーデリド・セブンイレブン・ポニークリーニング・保育園etc.】 ※駐輪場・バイク置き場・駐車場の空き状況等詳細につきましてはお問い合わせください。
エレベーター,オートロック,宅配ボックス,TVドアホン,駐車場,大型駐車場,バイク置き場,駐輪場,ラウンジ,コンシェルジュ,ゲストルーム,パーティールーム,敷地内ゴミ置き場,各階ゴミ置き場,内廊下,24時間管理,防犯カメラ,BS,CS,CATV,インターネット,楽器可
※掲載情報が現況と異なる場合は、現況を優先させていただきます。
※キャンペーン情報は予告なく変更・終了する場合がございます。詳細はお問い合わせください。
※部屋により敷金・礼金・キャンペーンの内容が異なる場合がございますので、詳しい情報は各部屋ページにてご確認ください。
※分譲賃貸は部屋によって所有者が異なる為、内装や設備が変更されている場合がございます。
※ペットの飼育やSOHO利用に関しては、建物自体が許可を出していても、所有者の意向により禁止とされている場合もございますのでご注意ください。
中原(男性)
2016/05/01
勝どき駅に直結しているタワーマンション。1階部分の公園や広場には多くのお子様が走り回っていて、ほのぼのとした印象を受けました。週末には毎週のように催し物が開催されています。セキュリティが充実したエントランス内はしっかりと管理が行き届いており清潔に保たれていました。単身~ファミリー層まで様々なルームプランが揃っており、是非とも一度ご内覧をお勧めします。
※これらの口コミは、ご成約者様や営業スタッフによる主観的な意見や感想です。建物の価値を客観的に評価するものではありません。あくまでも一つの参考としてご活用ください。
空室確認・内覧予約・空き待ちをご希望のお客様は、こちらよりお気軽にお問い合わせください。
03-6890-7755
