リルシア新御徒町 成約済み物件 (9096-203)

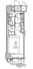
  • リルシア新御徒町 2階 間取り図
  • リルシア新御徒町 物件写真 建物写真1
  • リルシア新御徒町 物件写真 建物写真2
  • リルシア新御徒町 物件写真 建物写真3
  • リルシア新御徒町 物件写真 建物写真4
  • リルシア新御徒町 物件写真 建物写真5
建物詳細ページを見る

物件概要

物件名
リルシア新御徒町
賃料
---円
共益費/
管理費
---円
敷金
---ヶ月
礼金
---ヶ月
仲介
手数料
---ヶ月
フリー
レント
---ヶ月
その他費用
---
間取り
1K
(洋室8.5帖)
専有面積
26.23m2
所在階/
総階数
2階/地上12階 
入居
可能時期
---
情報登録日
2024年1月5日
情報更新日
2024年1月5日
所在地
東京都台東区元浅草3-4-5地図
交通
都営大江戸線新御徒町駅」徒歩3分
つくばエクスプレス新御徒町駅」徒歩3分
東京メトロ銀座線稲荷町駅」徒歩9分
都営浅草線蔵前駅」徒歩10分
都営浅草線浅草駅」徒歩14分
問合番号
9096-203
物件特徴
ペット可、分譲賃貸
更新料
---ヶ月
築年月
2021年11月
総戸数
33戸
建物構造
RC造
保険
要加入
保証会社
利用必須
方角
契約形態
普通賃貸借契約
ペット
可 小型犬または猫1匹
SOHO・
事務所
不可 
取引態様
媒介

備考:

more

建物設備

エレベーター,オートロック,宅配ボックス,TVドアホン,バイク置き場,駐輪場,敷地内ゴミ置き場,BS,CS

部屋設備

独立洗面台,ウォシュレット,浴室乾燥機,システムキッチン,ガスコンロ,エアコン,ダブルロックキー,フローリング,角部屋

募集中住戸一覧

0室表示

現在公開中の部屋情報がありません。
最新の情報はこちらからお問い合わせください。

チェックした部屋について

問い合わせる 検討中リストに追加

※掲載情報が現況と異なる場合は、現況を優先させていただきます。
※キャンペーン情報は予告なく変更・終了する場合がございます。詳細はお問い合わせください。
※部屋により敷金・礼金・キャンペーンの内容が異なる場合がございますので、詳しい情報は各部屋ページにてご確認ください。
※分譲賃貸は部屋によって所有者が異なる為、内装や設備が変更されている場合がございます。
※ペットの飼育やSOHO利用に関しては、建物自体が許可を出していても、所有者の意向により禁止とされている場合もございますのでご注意ください。

おすすめ物件情報

最近見た物件

閉じる

検討中リストに追加しました。

ページ上部の検討中リストより、追加した部屋情報が確認できます。

ページ上部の検討中リストより、追加した部屋情報が確認できます。