

仲介手数料無料キャンペーン中です。
※キャンペーン内容は売買、賃貸、お部屋により異なります。
エレベーター,オートロック,宅配ボックス,TVドアホン,トランクルーム,駐輪場,敷地内ゴミ置き場,防犯カメラ,BS,CS,CATV,インターネット
※掲載情報が現況と異なる場合は、現況を優先させていただきます。
※キャンペーン情報は予告なく変更・終了する場合がございます。詳細はお問い合わせください。
※部屋により敷金・礼金・キャンペーンの内容が異なる場合がございますので、詳しい情報は各部屋ページにてご確認ください。
※分譲賃貸は部屋によって所有者が異なる為、内装や設備が変更されている場合がございます。
※ペットの飼育やSOHO利用に関しては、建物自体が許可を出していても、所有者の意向により禁止とされている場合もございますのでご注意ください。
(20代/男性/2LDK)
2021/08/21
想像していたよりもきれいで過ごしやすそうでした。
建物の共用部や設備、内装なども申し分なく、物件の条件としても非常に良かったです。
対応してくださった方もとても親切に接客いただき、気持ちよく引っ越しをすることができました。
原(男性)
2021/08/10
東京メトロ丸の内線「方南町駅」1番出口より徒歩10分程のところに物件はございました。
駅周辺には、大型スーパーやコンビニ、飲食店が点在がしており、利便性の高い環境です。道中の環七通り沿いは交通量が多い為、夜間でも女性も安心して往来できます。
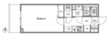
今回は2LDKの東向きと西向きの2部屋をご案内いたしました。
内装は白基調で開放感がありました。
大容量のシューズインクローゼットや浴室乾燥機、独立洗面台など設備も申し分ありません。
また、物件周辺は低層の建物が多く、特に西向きのお部屋は目の前に建物がない為日当たりが非常に良いです。
東向きのお部屋では、新宿のビル群のパノラマ夜景をお楽しみいただけます。
※これらの口コミは、ご成約者様や営業スタッフによる主観的な意見や感想です。建物の価値を客観的に評価するものではありません。あくまでも一つの参考としてご活用ください。
空室確認・内覧予約・空き待ちをご希望のお客様は、こちらよりお気軽にお問い合わせください。
03-6890-7755
