ザ・パークハビオ高円寺レジデンス 成約済み物件 (8816-406)

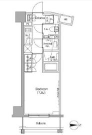
  • ザ・パークハビオ高円寺レジデンス 406 間取り図
  • ザ・パークハビオ高円寺レジデンス 画像
  • ザ・パークハビオ高円寺レジデンス 写真
  • ザ・パークハビオ高円寺レジデンス 外観
  • ザ・パークハビオ高円寺レジデンス 外観 写真
  • ザ・パークハビオ高円寺レジデンス 外観 画像
建物詳細ページを見る

物件概要

物件名
ザ・パークハビオ高円寺レジデンス
賃料
---円
共益費/
管理費
---円
敷金
---ヶ月
礼金
---ヶ月
仲介
手数料
---ヶ月
フリー
レント
---ヶ月
その他費用
---
間取り
1K
(洋室7.5帖)
専有面積
25.51m2
所在階/
総階数
4階/地上10階 地下1階
入居
可能時期
---
情報登録日
2024年12月12日
情報更新日
2024年12月22日
所在地
東京都杉並区高円寺南2-37-17地図
交通
東京メトロ丸ノ内線東高円寺駅」徒歩8分
JR中央・総武線高円寺駅」徒歩10分
JR中央線(快速)高円寺駅」徒歩10分
東京メトロ丸ノ内線新高円寺駅」徒歩10分
問合番号
8816-406
物件特徴
ペット可
更新料
---ヶ月
築年月
2021年8月
総戸数
75戸
建物構造
RC造
保険
要加入
保証会社
利用必須
方角
契約形態
普通賃貸借契約
ペット
可 
SOHO・
事務所
不可 
取引態様
媒介

備考:

more

建物設備

エレベーター,オートロック,宅配ボックス,TVドアホン,駐車場,フィットネスジム,敷地内ゴミ置き場,防犯カメラ,BS,CS,CATV,インターネット

部屋設備

独立洗面台,ウォシュレット,浴室乾燥機,システムキッチン,ガスコンロ,エアコン,ダブルロックキー,フローリング

募集中住戸一覧

2室表示

チェックした部屋について

問い合わせる 検討中リストに追加

※掲載情報が現況と異なる場合は、現況を優先させていただきます。
※キャンペーン情報は予告なく変更・終了する場合がございます。詳細はお問い合わせください。
※部屋により敷金・礼金・キャンペーンの内容が異なる場合がございますので、詳しい情報は各部屋ページにてご確認ください。
※分譲賃貸は部屋によって所有者が異なる為、内装や設備が変更されている場合がございます。
※ペットの飼育やSOHO利用に関しては、建物自体が許可を出していても、所有者の意向により禁止とされている場合もございますのでご注意ください。

おすすめ物件情報

最近見た物件

閉じる

検討中リストに追加しました。

ページ上部の検討中リストより、追加した部屋情報が確認できます。

ページ上部の検討中リストより、追加した部屋情報が確認できます。