

備考:
【駐車場】機械式42,000円~/月額
【バイク置き場】5,250円/月額
【駐輪場】初回登録料3,150円 ※駐輪場・バイク置き場・駐車場の空き状況等詳細につきましてはお問い合わせください。
エレベーター,オートロック,宅配ボックス,TVドアホン,駐車場,バイク置き場,駐輪場,敷地内ゴミ置き場,オール電化,防犯カメラ,BS,CS,CATV,インターネット,閑静な住宅街
※掲載情報が現況と異なる場合は、現況を優先させていただきます。
※キャンペーン情報は予告なく変更・終了する場合がございます。詳細はお問い合わせください。
※部屋により敷金・礼金・キャンペーンの内容が異なる場合がございますので、詳しい情報は各部屋ページにてご確認ください。
※分譲賃貸は部屋によって所有者が異なる為、内装や設備が変更されている場合がございます。
※ペットの飼育やSOHO利用に関しては、建物自体が許可を出していても、所有者の意向により禁止とされている場合もございますのでご注意ください。
萩野(男性)
2017/09/25
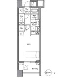
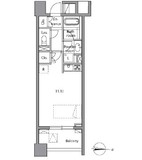
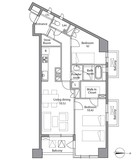
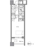
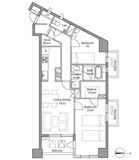
JR山手線「渋谷駅」西口を出て歩道橋を渡り直進、5分程歩くと物件は有りました。代官山エリア方面のため大変静かな周辺環境でした。私のご案内した1LDKタイプの居室は窓が大きく、日当たりの良さが印象的でした。バルコニーのスペースが広いため、アレンジをされたいお客様にもお勧めです。眺望は遮る建物が少ないため抜けておりました。
※これらの口コミは、ご成約者様や営業スタッフによる主観的な意見や感想です。建物の価値を客観的に評価するものではありません。あくまでも一つの参考としてご活用ください。
空室確認・内覧予約・空き待ちをご希望のお客様は、こちらよりお気軽にお問い合わせください。
03-6890-7755